NZ60 Hector
About the NZ60 Hector
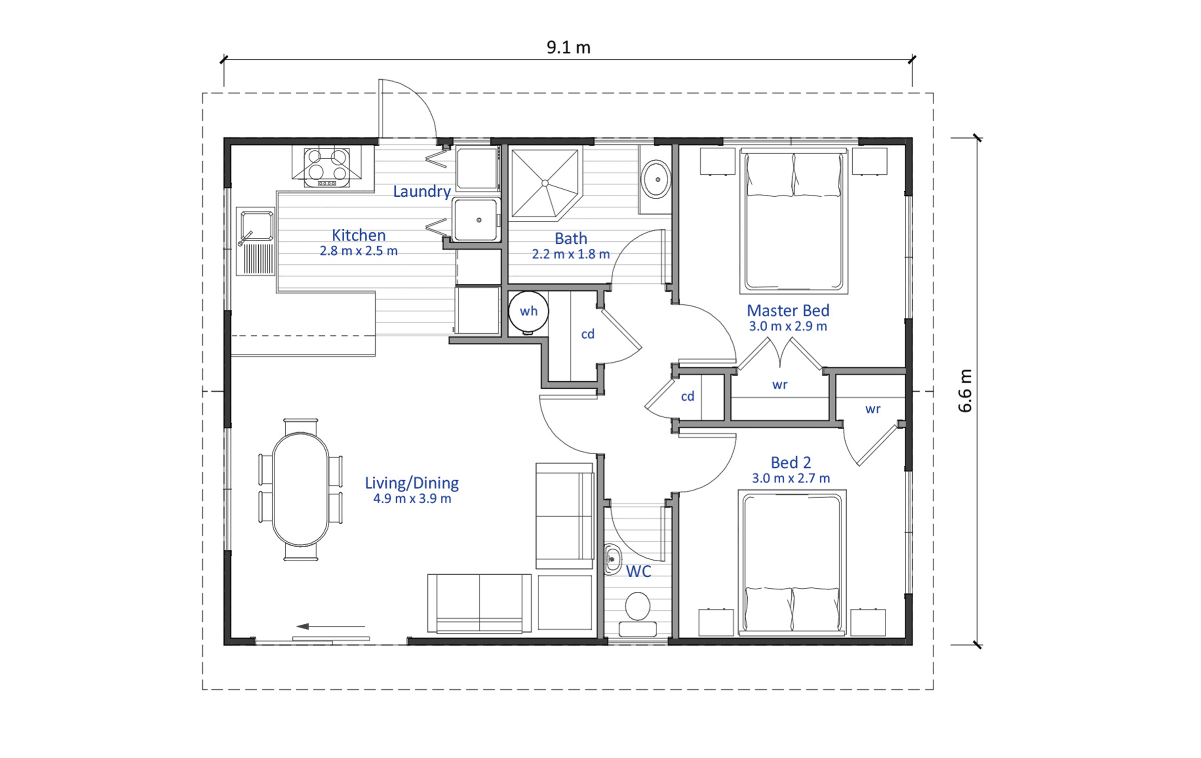
Granny flats or beach houses are definitely the best uses for this small and functional 60m2 house plan. A very popular small home with 2 bedrooms, 1 bathroom and is loved for its simple layout.
The large kitchen with lots of bench space has the laundry cleverly hidden behind double folding doors.
The two large bedrooms each have built-in wardrobes. The bathroom has a shower and separate toilet.
The box layout makes this design easy to build yourself. It’s perfect as a granny flat, holiday home or for additional accommodation on rural sections.
We love how this design has everything for the ‘no fuss’ home owner.
Customising this Floor Plan
All our designs are flexible and can be customised to suit your needs and personal preferences, meaning that house you’ve always dreamed of is at your fingertips. Talk to our team today.
Floor Plan
* All prices are inclusive of GST and subject to change. Delivery costs dependent on build type and location.
Click here to download our full Terms and Conditions.





