NZ80 Thames
About the NZ80 Thames
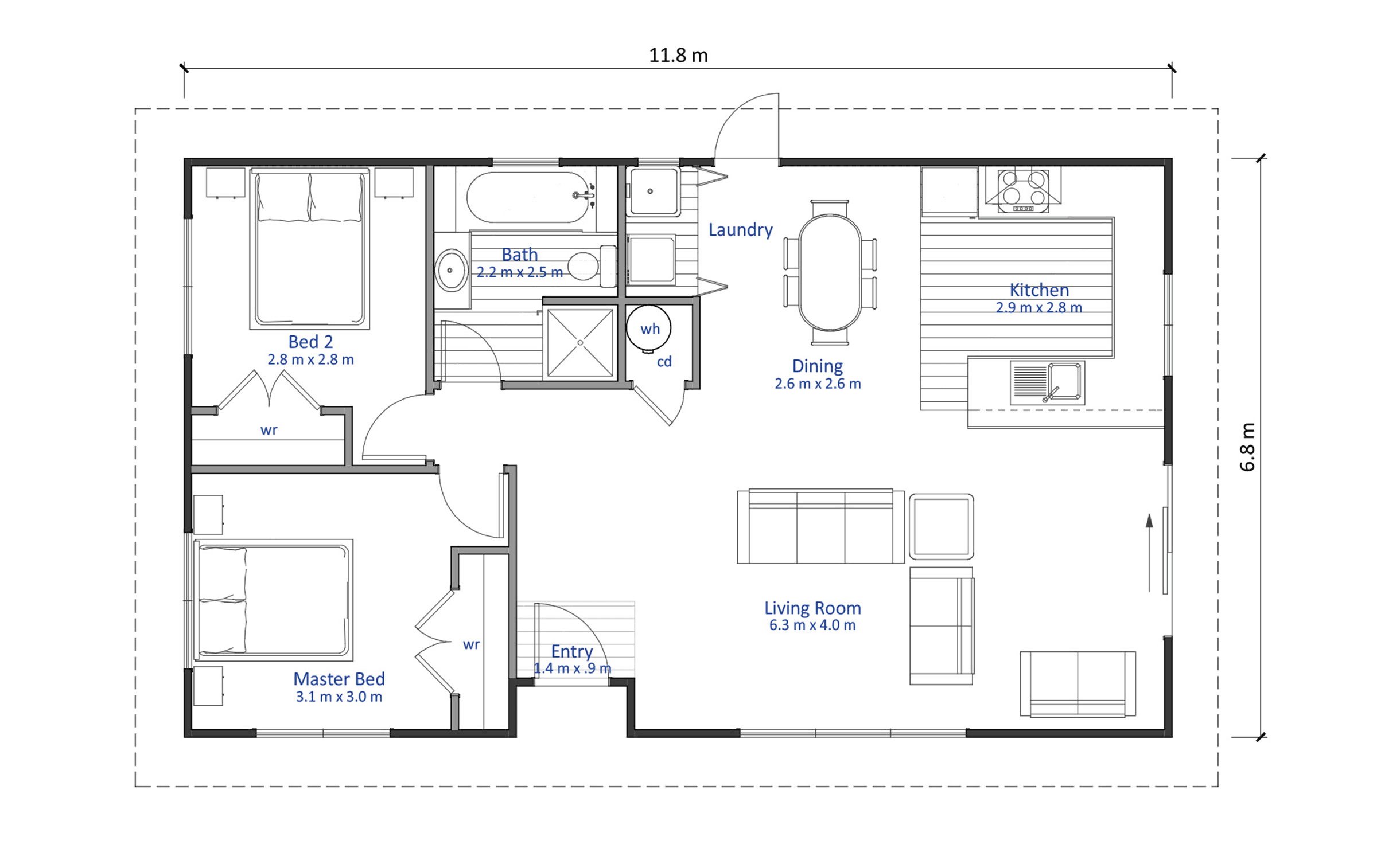
The Thames is a very popular 2 bedroom, 1 bathroom plan loved for its design and functional layout.
Although it has a small footprint of only 80m2 its smart layout means you’re not compromising on space.
The open plan living area is light and spacious and features a full kitchen and separate laundry. The large bathroom has a separate shower and bath. The two roomy bedrooms will easily accommodate queen-sized beds in either room and both have double wardrobes so you won’t be short on storage.
We love how this home can have so many different uses - it’s great for a family beach house, granny flat or even for additional accommodation on rural sections. You’ll fall in love with the space this compact home offers.
Customising this Floor Plan
All our designs are flexible and can be customised to suit your needs and personal preferences, meaning that house you’ve always dreamed of is at your fingertips. Talk to our team today.
Floor Plan
* All prices are inclusive of GST and subject to change. Delivery costs dependent on build type and location.
Click here to download our full Terms and Conditions.





