NZ136 Cape Campbell
About the NZ136 Cape Campbell
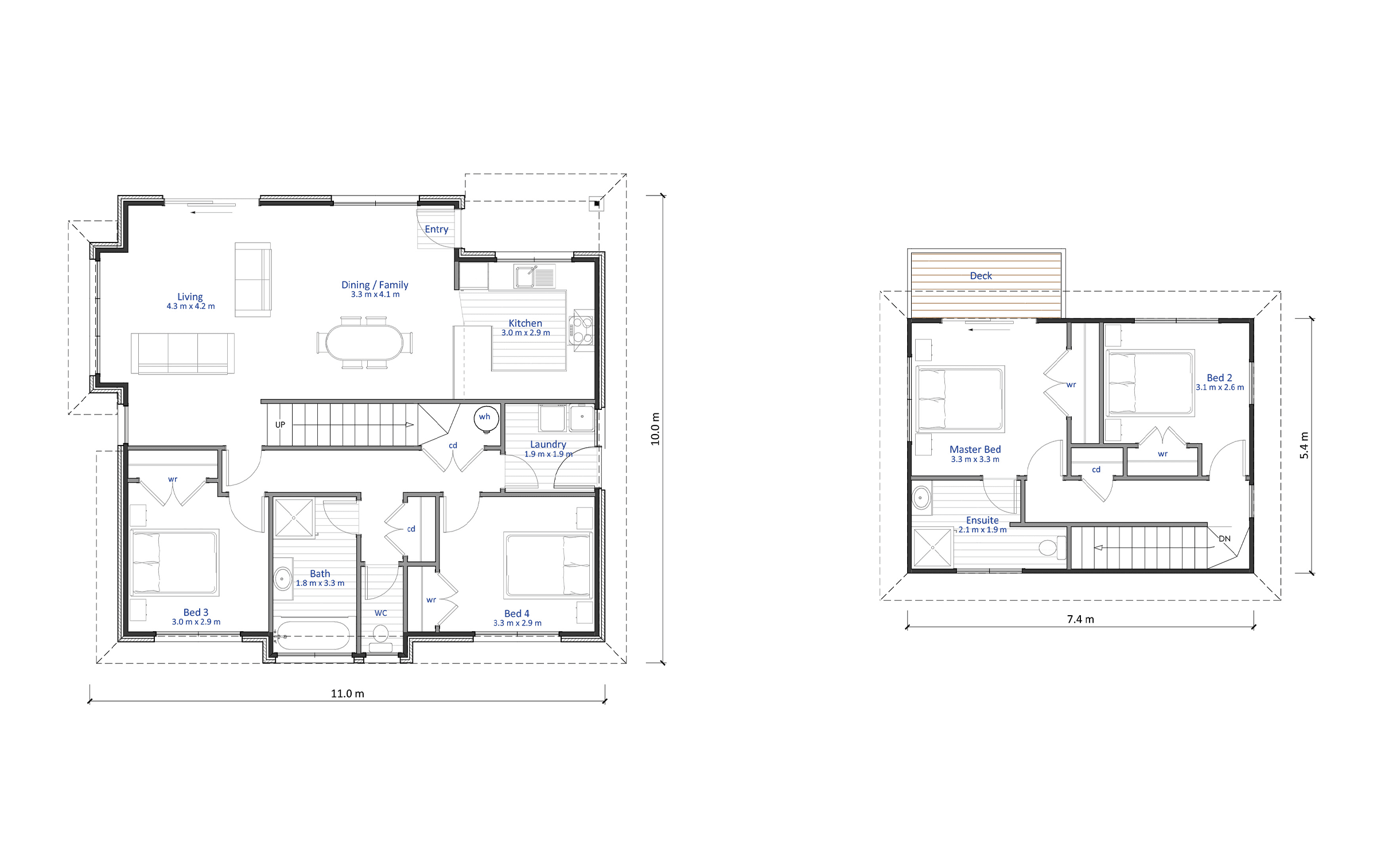
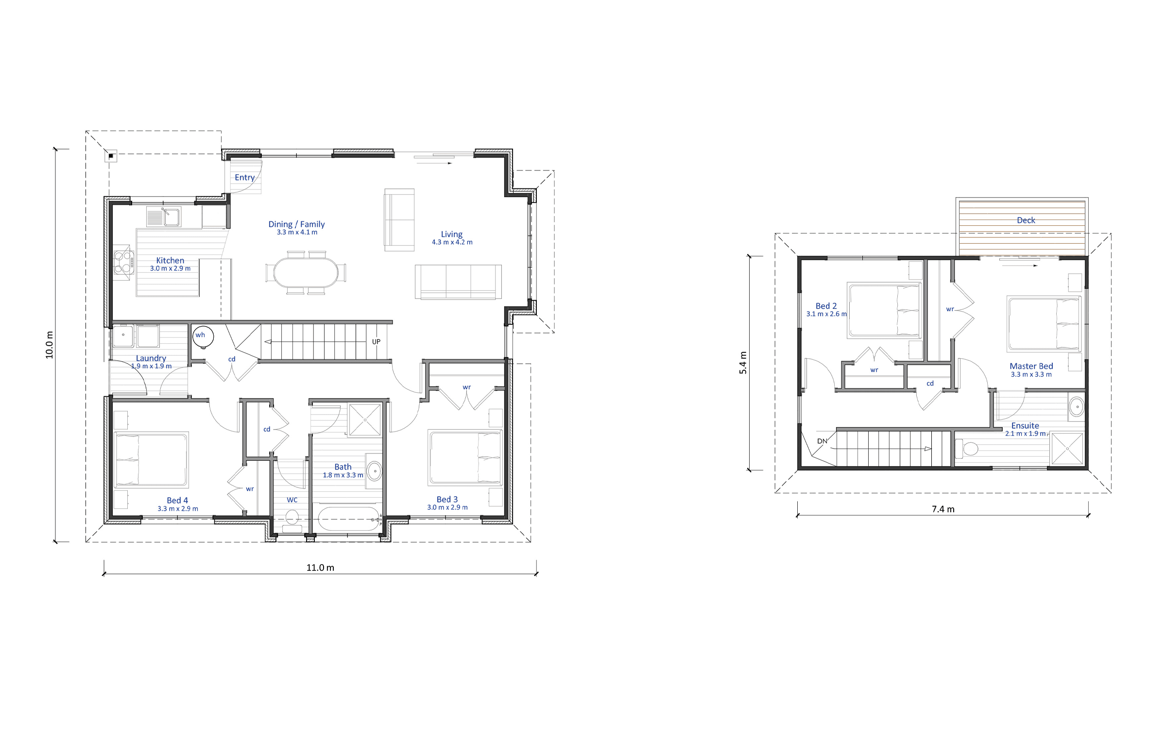
The Cape Campbell is large double storey 4 bedroom home. With two bedrooms upstairs (including the master with ensuite) and two bedrooms downstairs, this home offers flexible family living.
The family bathroom downstairs has a separate shower, bath and toilet. A separate laundry offers additional storage space and access to outside.
The open plan kitchen, dining and living room forms the hub of the home that allows great indoor/outdoor flow. The kitchen has plenty of bench space and a large double pantry.
With double wardrobes in every bedroom and cupboards conveniently and cleverly placed around the house, you won’t be short on storage - perfect for the growing family!
You’ll love the private balcony off the upstairs master bedroom, for your morning coffee, or a quiet place to relax and escape the kids!
Customising this Floor Plan
All our designs are flexible and can be customised to suit your needs and personal preferences, meaning that house you’ve always dreamed of is at your fingertips. Talk to our team today.
Floor Plan
* All prices are inclusive of GST and subject to change. Delivery costs dependent on build type and location.
Click here to download our full Terms and Conditions.





