NZ117 Cape Saunders
About the NZ117 Cape Saunders
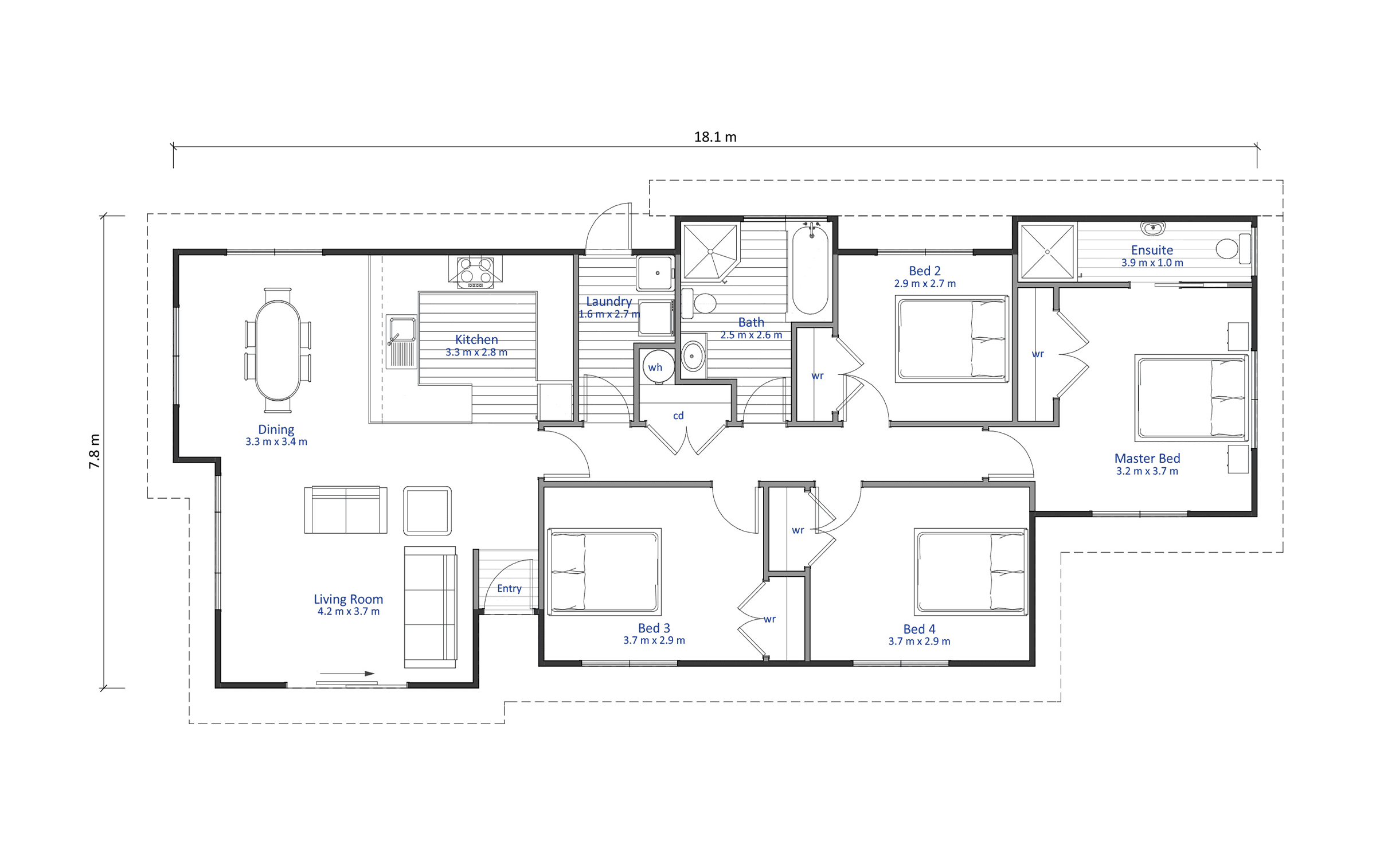
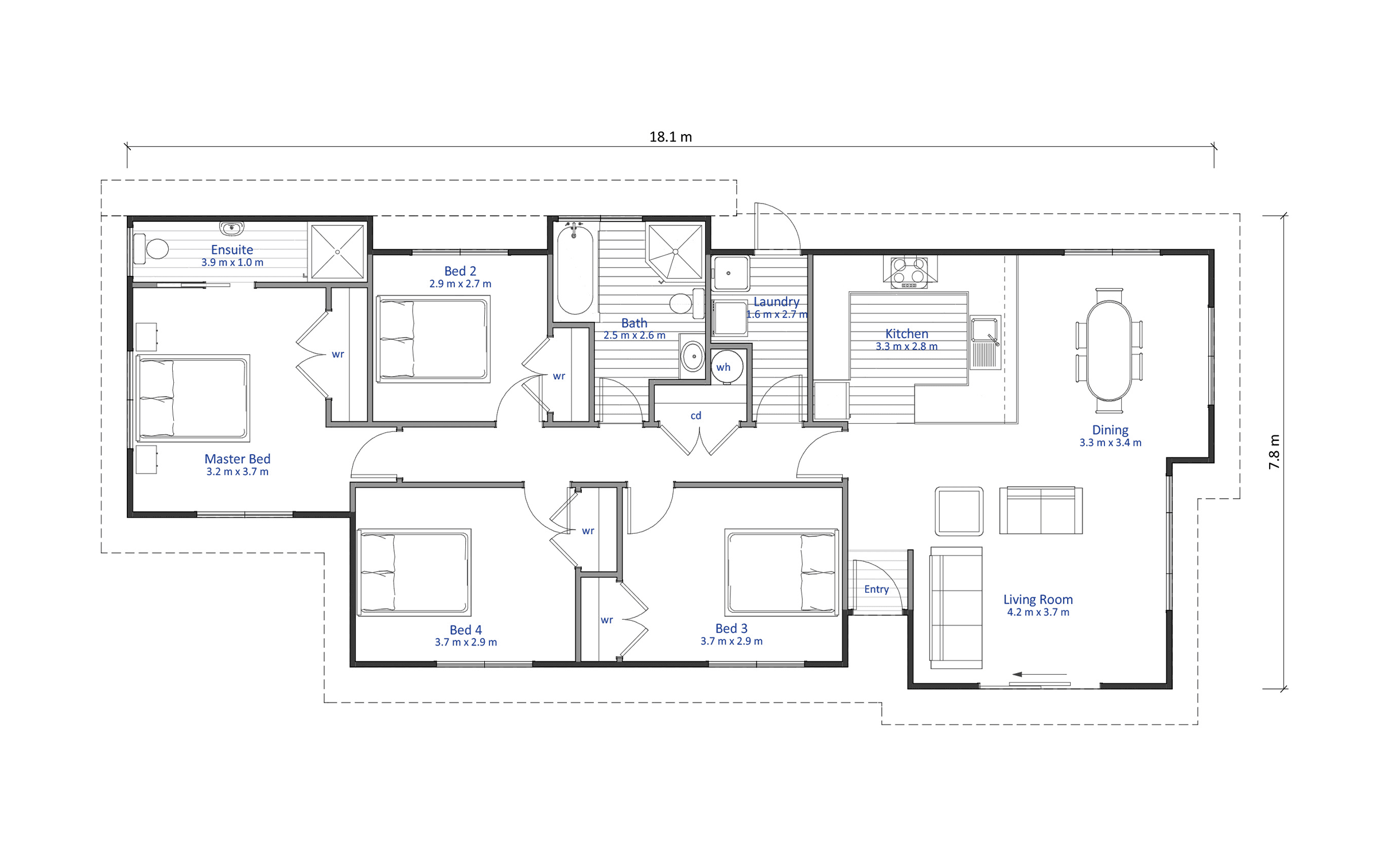
If you have a large family but only a small building site then the Cape Saunders is a great house plan to consider.
This is a very attractive single storey house with 4 bedrooms, 2 bathrooms, and a separate laundry.
The spacious living area is in an open plan arrangement leading to an outside area ideal for entertaining or as a deck - for great indoor/outdoor flow.
The master bedroom has an ensuite and large double wardrobe. There is a family bathroom with separate shower and bath.
You’ll love the amount of storage this small home offers. With double wardrobes in each bedroom, a double hall cupboard plus a separate laundry, you’re spoilt for choice!
The large u-shaped kitchen has lots of bench space, a breakfast bar and large corner pantry.
Customising this Floor Plan
All our designs are flexible and can be customised to suit your needs and personal preferences, meaning that house you’ve always dreamed of is at your fingertips. Talk to our team today.
Floor Plan
* All prices are inclusive of GST and subject to change. Delivery costs dependent on build type and location.
Click here to download our full Terms and Conditions.





