NZ175 Port Jackson
About the NZ175 Port Jackson
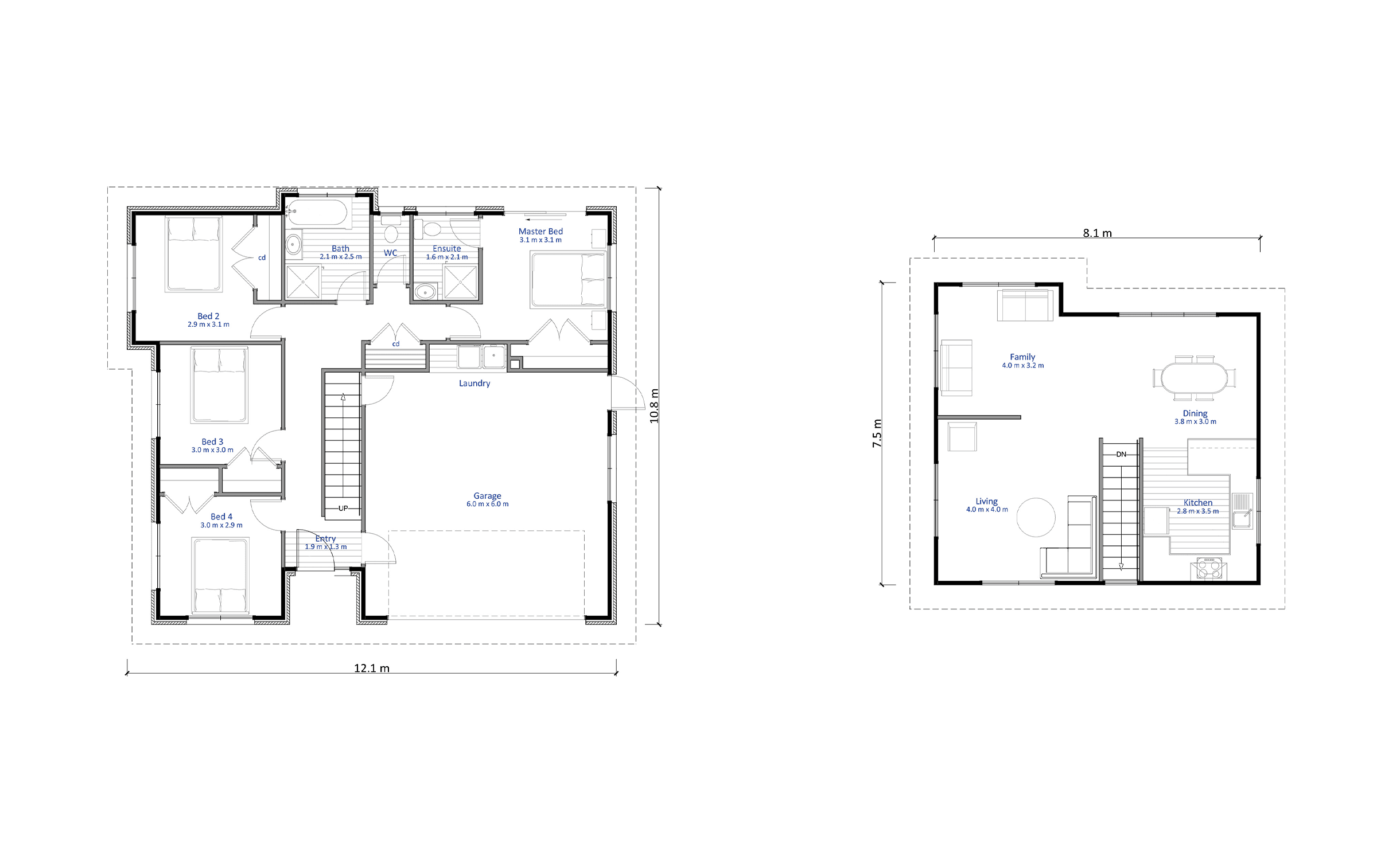
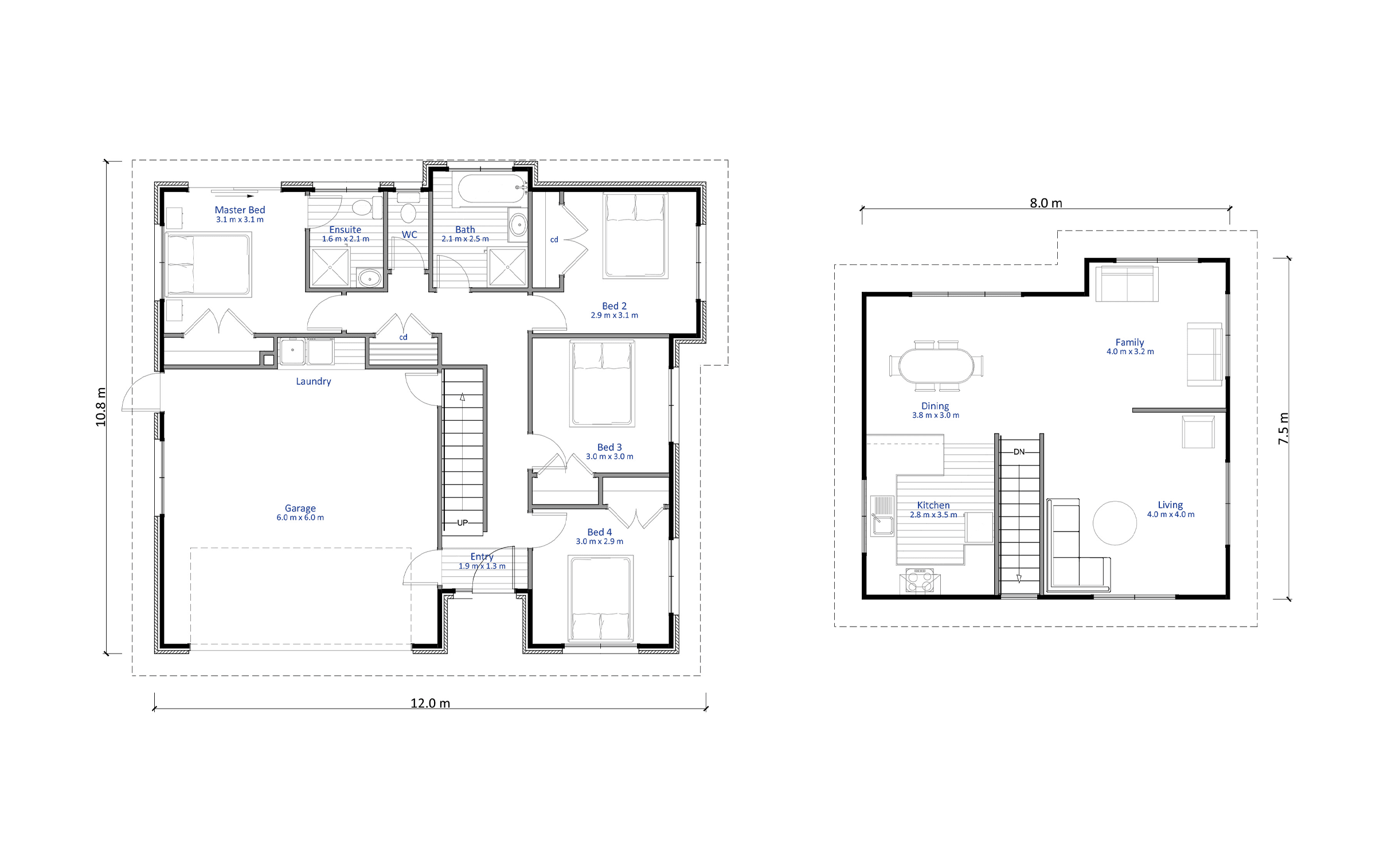
The Port Jackson is a large family home spread out over 2 stories.
On the first level there are 4 spacious bedrooms and 2 bathrooms - an ensuite off the master bedroom and large family bathroom with separate shower, bath and toilet. The extra large double garage with internal access has plenty of space for the laundry, cars, bikes and other family toys.
Then upstairs has all you need to live and entertain – large open plan living and family rooms within easy reach of the dining room and kitchen.
We love how the bedrooms and living areas are completely separated. And with two living rooms there’s space for the whole family and all their friends!
Customising this Floor Plan
All our designs are flexible and can be customised to suit your needs and personal preferences, meaning that house you’ve always dreamed of is at your fingertips. Talk to our team today.
Floor Plan
* All prices are inclusive of GST and subject to change. Delivery costs dependent on build type and location.
Click here to download our full Terms and Conditions.





