NZ180 Great Barrier
About the NZ180 Great Barrier
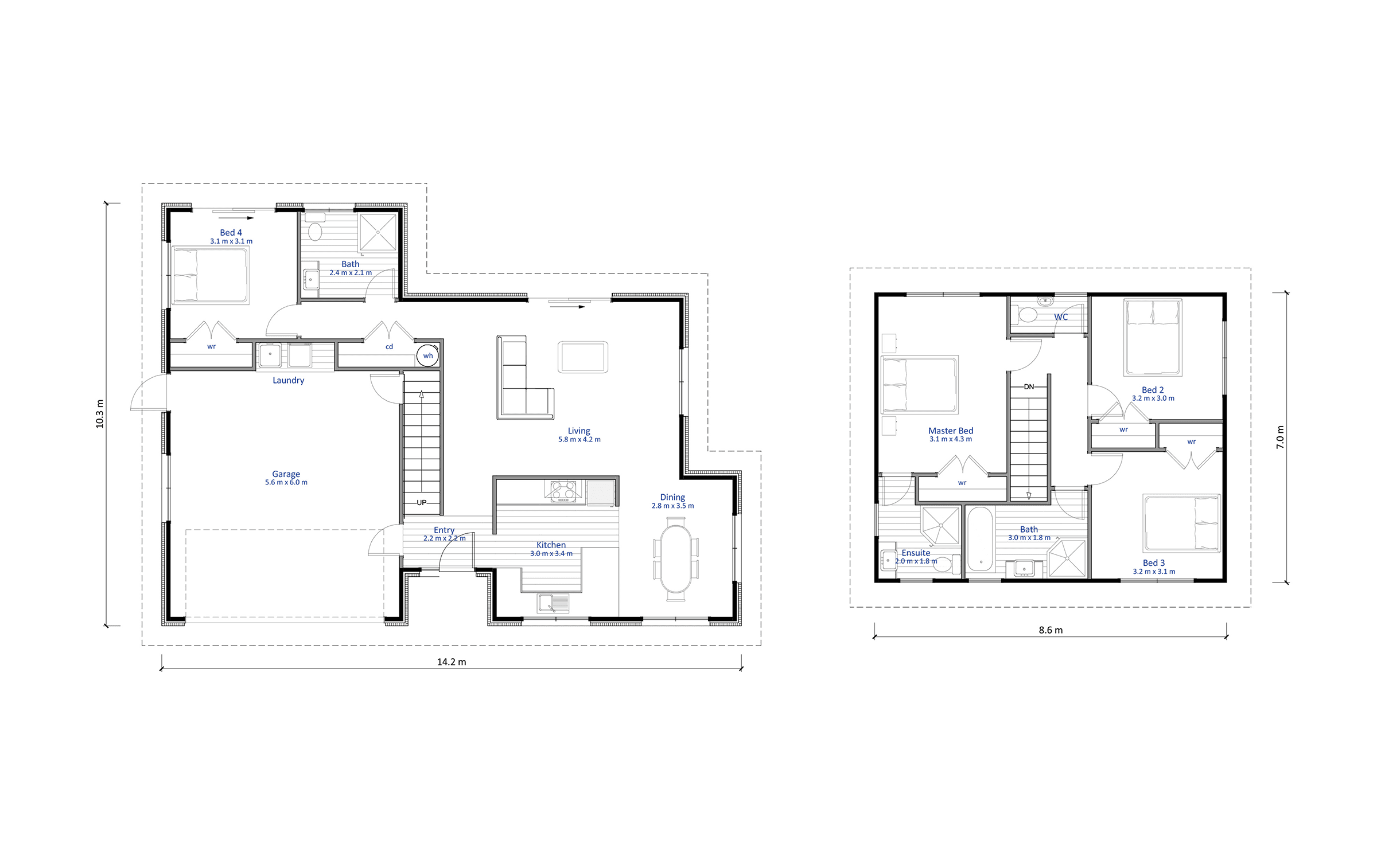
The Great Barrier is a large home with 4 bedrooms, 3 bathrooms and large garage with laundry, giving the flexibility to grow with your family or changing needs.
Downstairs is the open plan kitchen, dining and living room that open out to a large patio or deck. There is also a large bedroom with double wardrobe and bathroom with shower.
Upstairs is the master bedroom with ensuite, family bathroom with separate shower and bath, separate toilet and two large bedrooms.
We love how this plan gives you the choice of locating the master bedroom on the ground floor or upstairs with the other bedrooms. Of if you have a lot of people to stay, the downstairs bedroom and bathroom is a great guest suite.
Customising this Floor Plan
All our designs are flexible and can be customised to suit your needs and personal preferences, meaning that house you’ve always dreamed of is at your fingertips. Talk to our team today.
Floor Plan
* All prices are inclusive of GST and subject to change. Delivery costs dependent on build type and location.
Click here to download our full Terms and Conditions.





