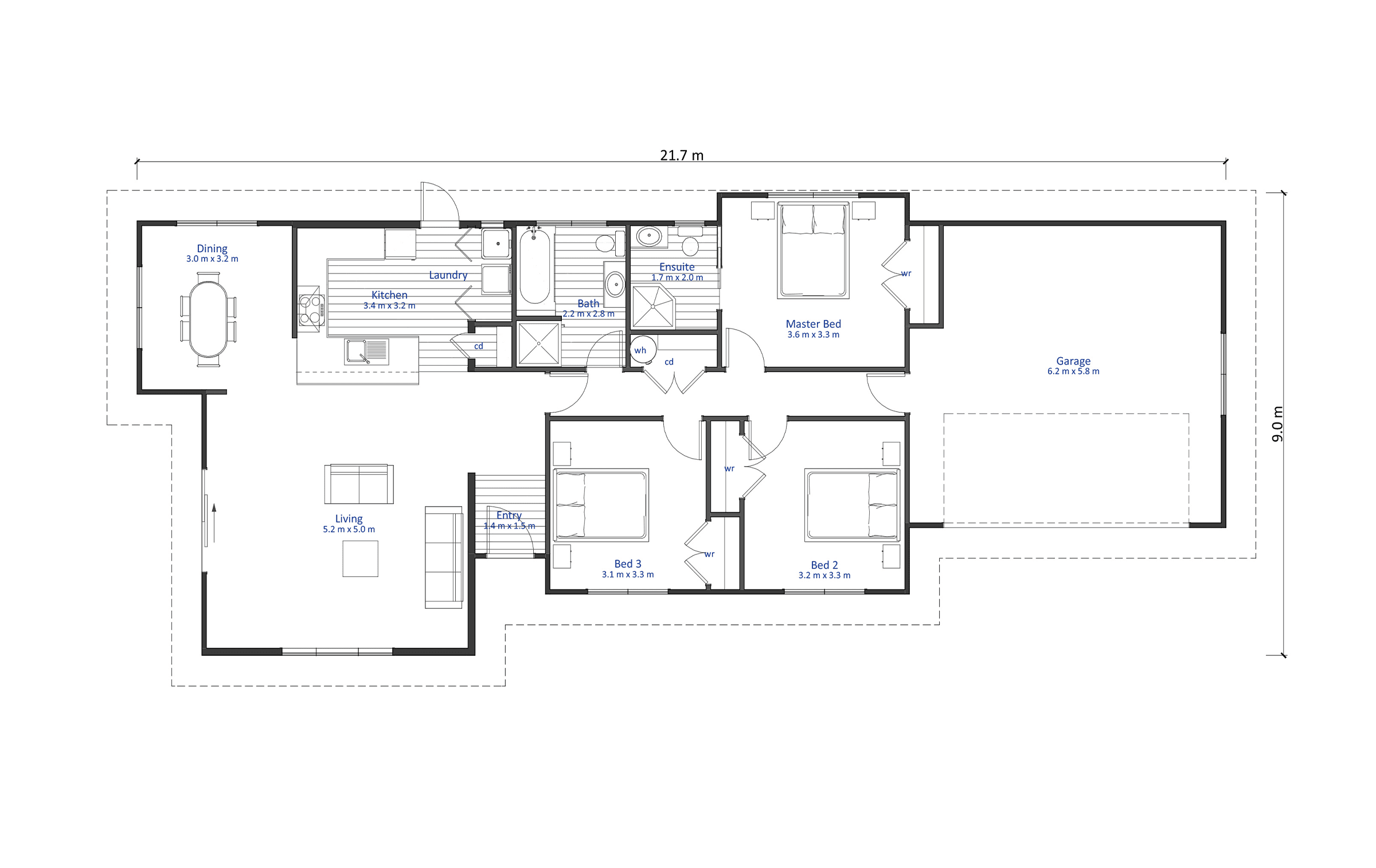
NZ153 Anchorage II
About the NZ153 Anchorage II
We’ve taken one of our most popular plans, The Anchorage, and added a double garage with easy internal access.
The Anchorage II has three large bedrooms with double wardrobes and the master with an ensuite. The family bathroom easily fits a separate bath and shower, with a separate toilet just next door.
The large open plan kitchen, dining and living area is separate to the bedrooms, allowing for privacy while you entertain at the other end of the house.
We love that the laundry is cleverly tucked away behind bi-fold doors in the large kitchen, which also has a separate pantry.
The spacious open plan kitchen, dining and living area is light and airy thanks to large windows and sliding doors - easy for indoor/outdoor entertaining.
This simple but cleverly designed family home is perfect for small sites, farm houses, holiday homes, people wanting to downsize and first home buyers.
Customising this Floor Plan
All our designs are flexible and can be customised to suit your needs and personal preferences, meaning that house you’ve always dreamed of is at your fingertips. Talk to our team today.
Floor Plan
* All prices are inclusive of GST and subject to change. Delivery costs dependent on build type and location.
Click here to download our full Terms and Conditions.




