NZ159 Whakamaru
About the NZ159 Whakamaru
From first sight, the Whakamaru looks every inch the modern family home. A 2020 Registered Master Builders Silver Award Winner, featuring beautiful cedar timber and linea weatherboard exterior cladding plus modern roof angles.
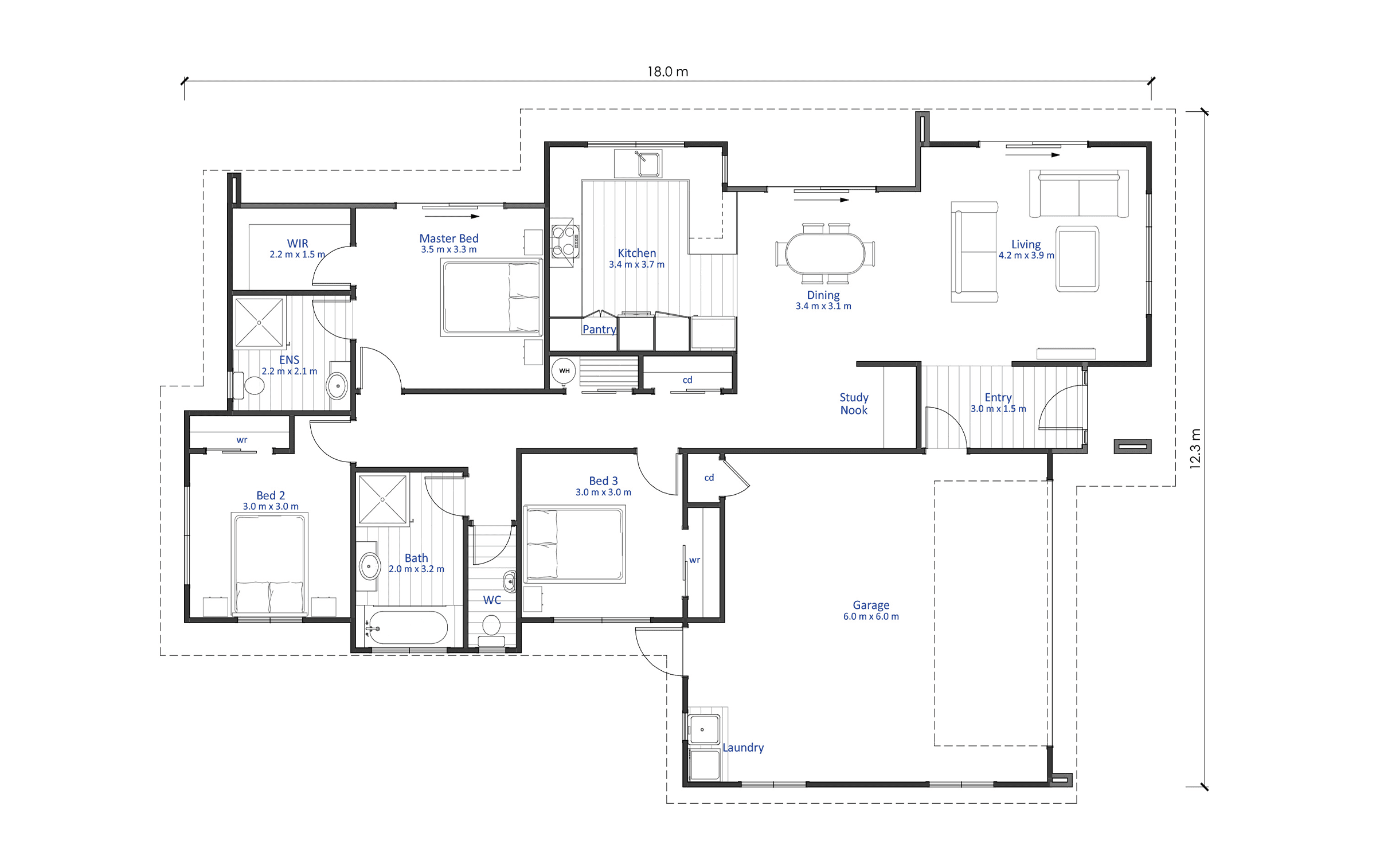
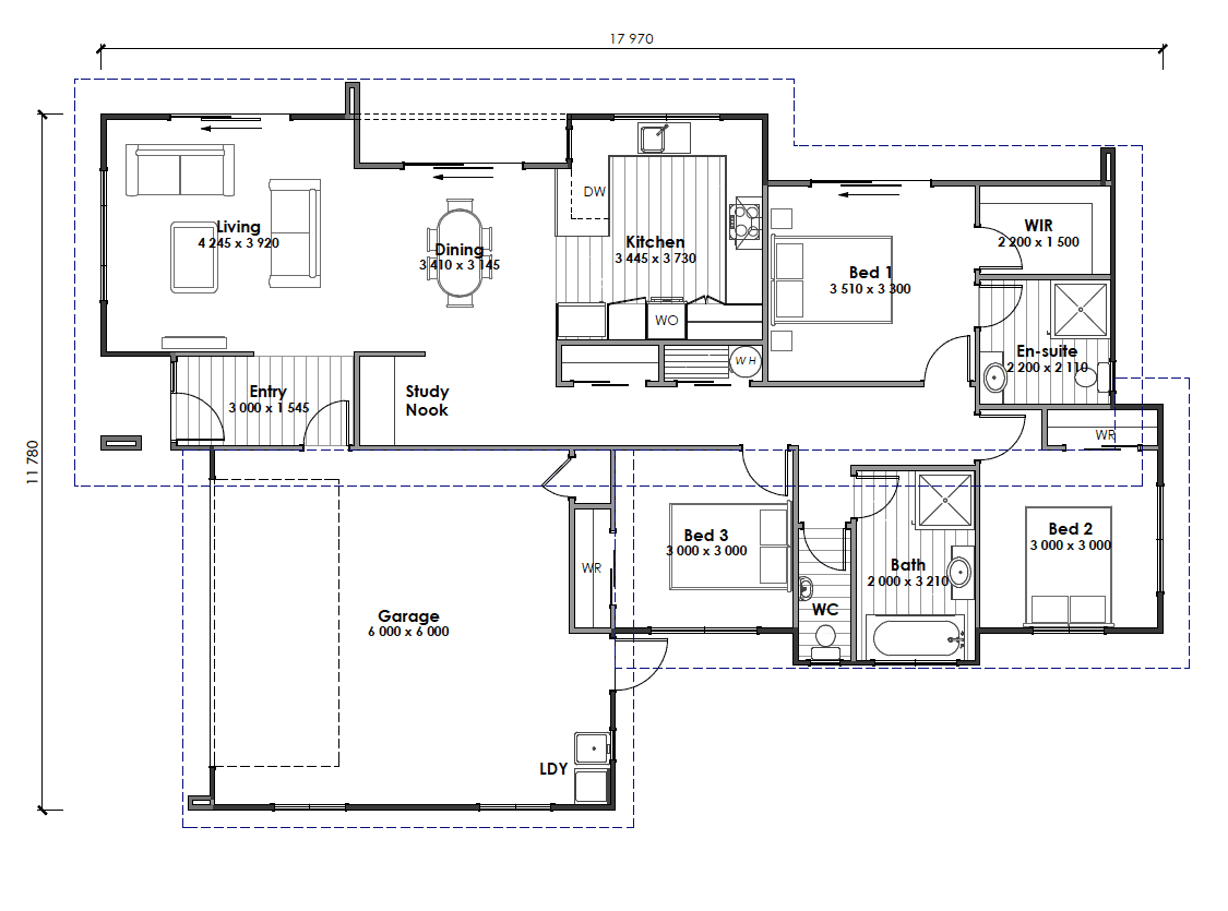
Enjoy the space created by the excellent access to the outdoor areas from the lounge, dining area, and master bedroom. The master bedroom also features a generous walk-in wardrobe and ensuite and the other two double bedrooms each feature a double wardrobe for extra storage.
Other great features include a large double garage with internal access, plus a conveniently placed laundry area with access outdoors to the washing line.
This plan is great for narrower sections and with plenty of large window space to capture the sun in your living areas and master bedroom you'll bathe in the warmth and sense of space within this 159 sqm home.
Customising this Floor Plan
All our designs are flexible and can be customised to suit your needs and personal preferences, meaning that house you’ve always dreamed of is at your fingertips. Talk to our team today.
Floor Plan
* All prices are inclusive of GST and subject to change. Delivery costs dependent on build type and location.
Click here to download our full Terms and Conditions.





