NZ164 North Cape
About the NZ164 North Cape
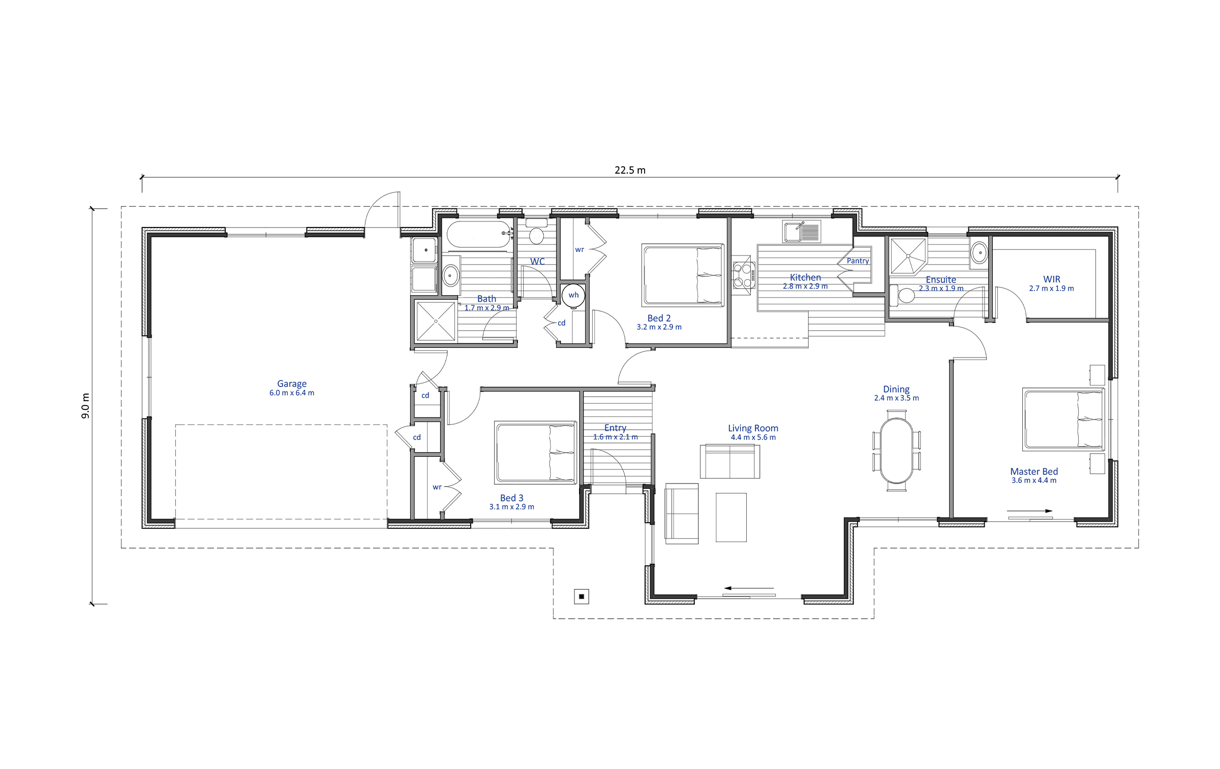
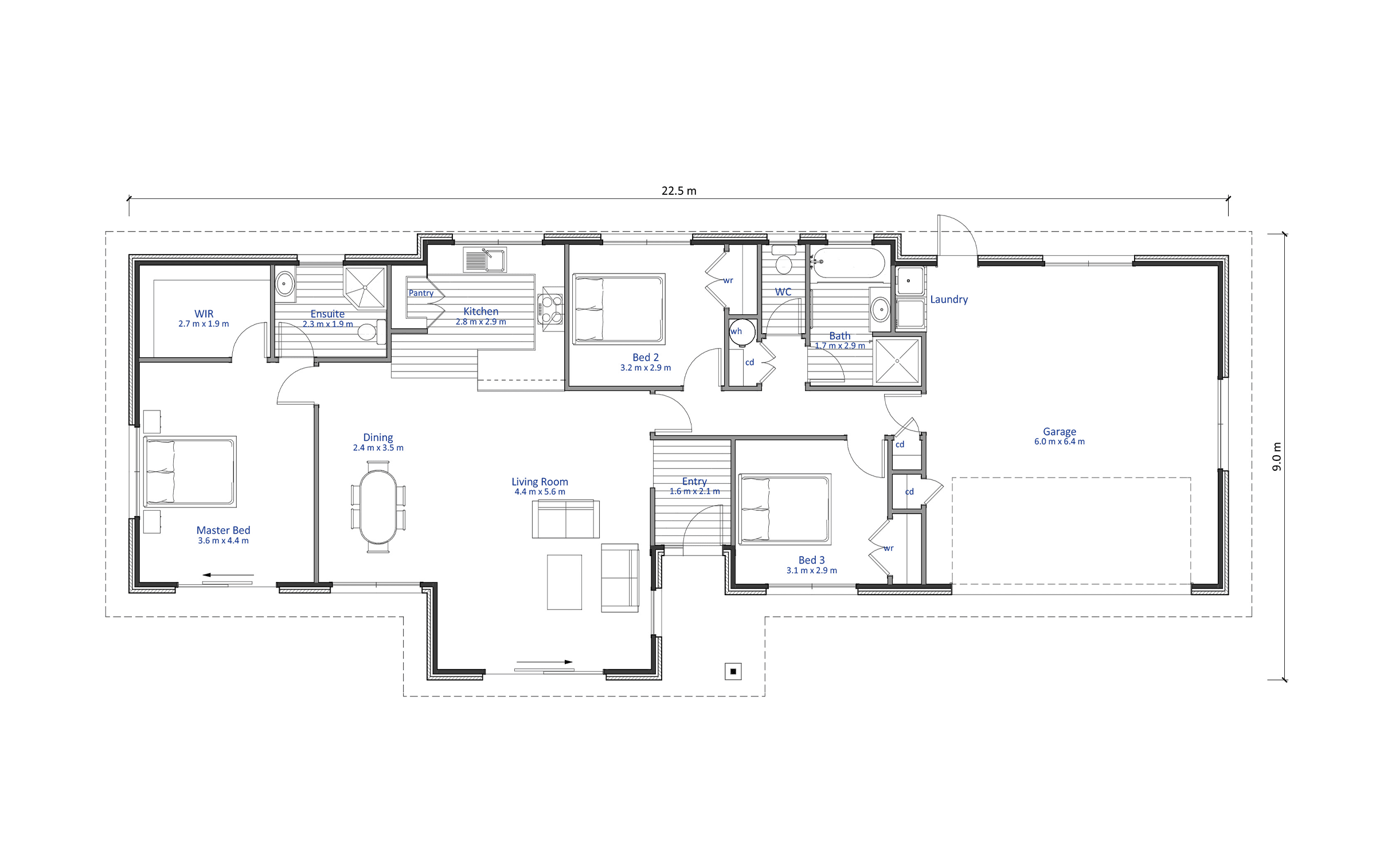
The North Cape is a well designed 3 bedroom, 2 bathroom house that has a great entertaining space.
If you’re looking for a home that has the master bedroom separated from the other bedrooms then this is the design to consider.
While all the bedrooms have good sized wardrobes, the master bedroom comes with a particularly generous walk-in wardrobe. With space for a sofa and sliding doors that open out to a patio, this is a lovely space to retreat to for some peace and quiet.
The centre of house is focused on the open plan kitchen, dining and living area that has that all-important indoor-outdoor flow - perfect for entertaining.
The large double garage and laundry at one end of the house lengthen this floorplan making it perfect for narrow sites.
You can be assured of comfortable living combined with great entertaining space with the North Cape house plan.
Customising this Floor Plan
All our designs are flexible and can be customised to suit your needs and personal preferences, meaning that house you’ve always dreamed of is at your fingertips. Talk to our team today.
Floor Plan
* All prices are inclusive of GST and subject to change. Delivery costs dependent on build type and location.
Click here to download our full Terms and Conditions.





