NZB180 Kaikoura
About the NZB180 Kaikoura
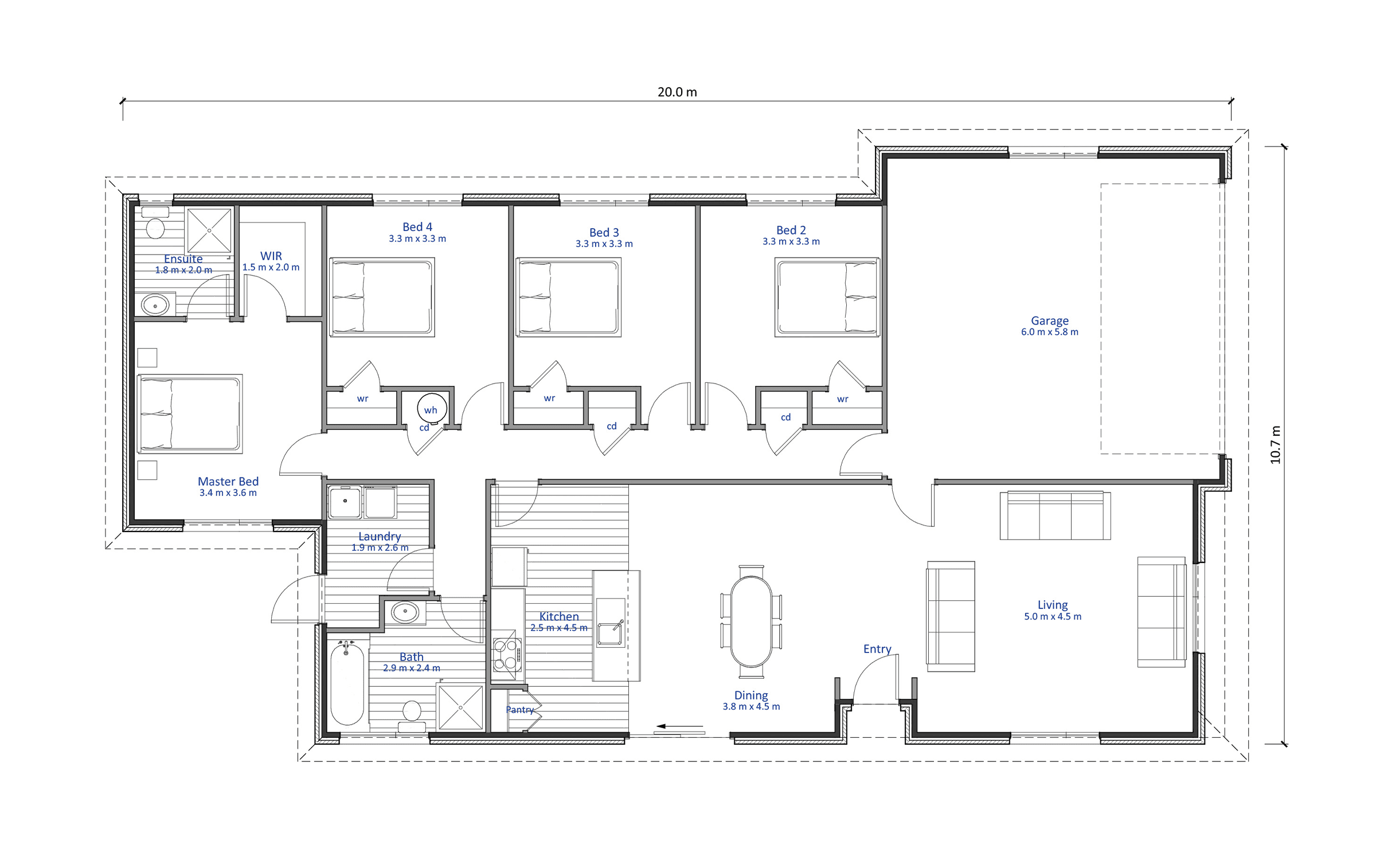
The Kaikoura is a well thought out design that separates the living area from the bedrooms so is perfect for households with varying ages.
The double garage with internal access and 4 bedrooms run along one side of the house. The master bedroom has an ensuite and walk-in wardrobe.
At the end of the hallway is the family bathroom, which has a separate bath and shower. There is also a separate laundry with plenty of extra storage.
Access to the double garage is also from extra large open plan kitchen, dining and living room - plenty of room to fit everyone in this area!
Customising this Floor Plan
All our designs are flexible and can be customised to suit your needs and personal preferences, meaning that house you’ve always dreamed of is at your fingertips. Talk to our team today.
Floor Plan
* All prices are inclusive of GST and subject to change. Delivery costs dependent on build type and location.
Click here to download our full Terms and Conditions.




