NZ172 Cape Kidnappers
About the NZ172 Cape Kidnappers
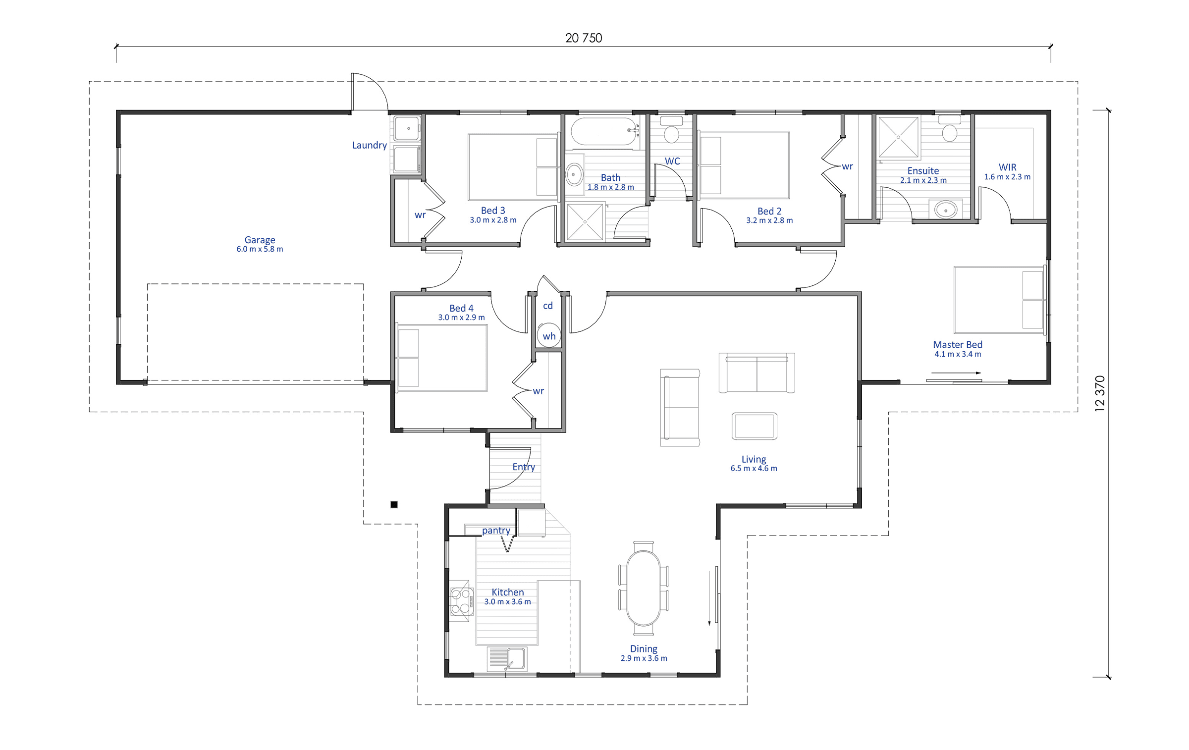
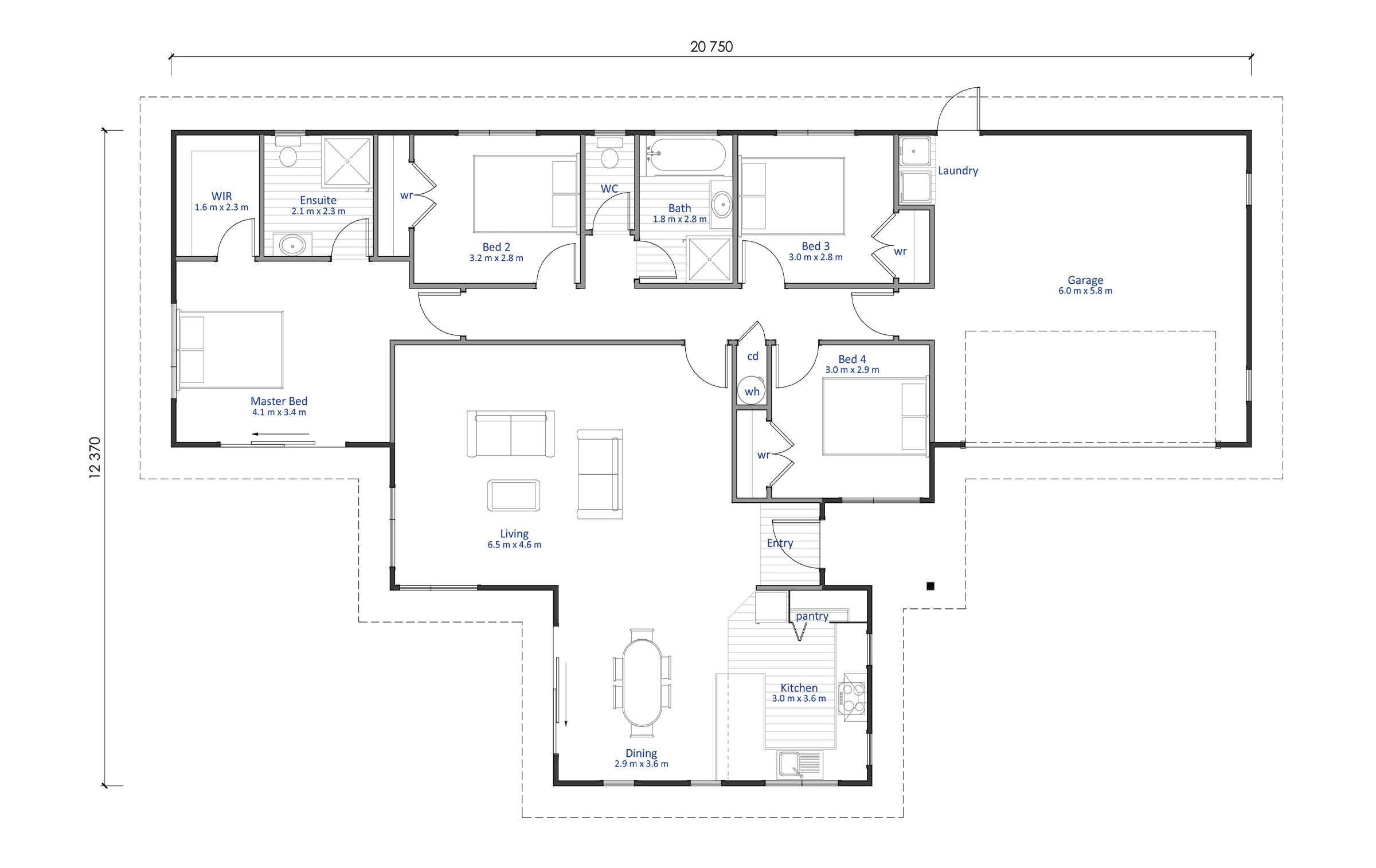
The Cape Kidnappers is a perfect home for a family that enjoys entertaining.
The large kitchen with walk-in pantry will be any budding chef’s delight, with a breakfast bar and open plan living area flowing out to the courtyard or deck.
Escape the noise (and the children!) in your master suite. Large walk-in wardrobe, roomy ensuite, space for a comfy chair and sliding doors to the outside, this will be your private hideaway!
The three other bedrooms all have double wardrobes and the family bathroom has a separate shower, bath and toilet.
With a large double garage and laundry, after parking two cars there’s room to spare.
We love how this home has the room to grow with you.
Customising this Floor Plan
All our designs are flexible and can be customised to suit your needs and personal preferences, meaning that house you’ve always dreamed of is at your fingertips. Talk to our team today.
Floor Plan
* All prices are inclusive of GST and subject to change. Delivery costs dependent on build type and location.
Click here to download our full Terms and Conditions.




