NZ185 Wingatui
About the NZ185 Wingatui
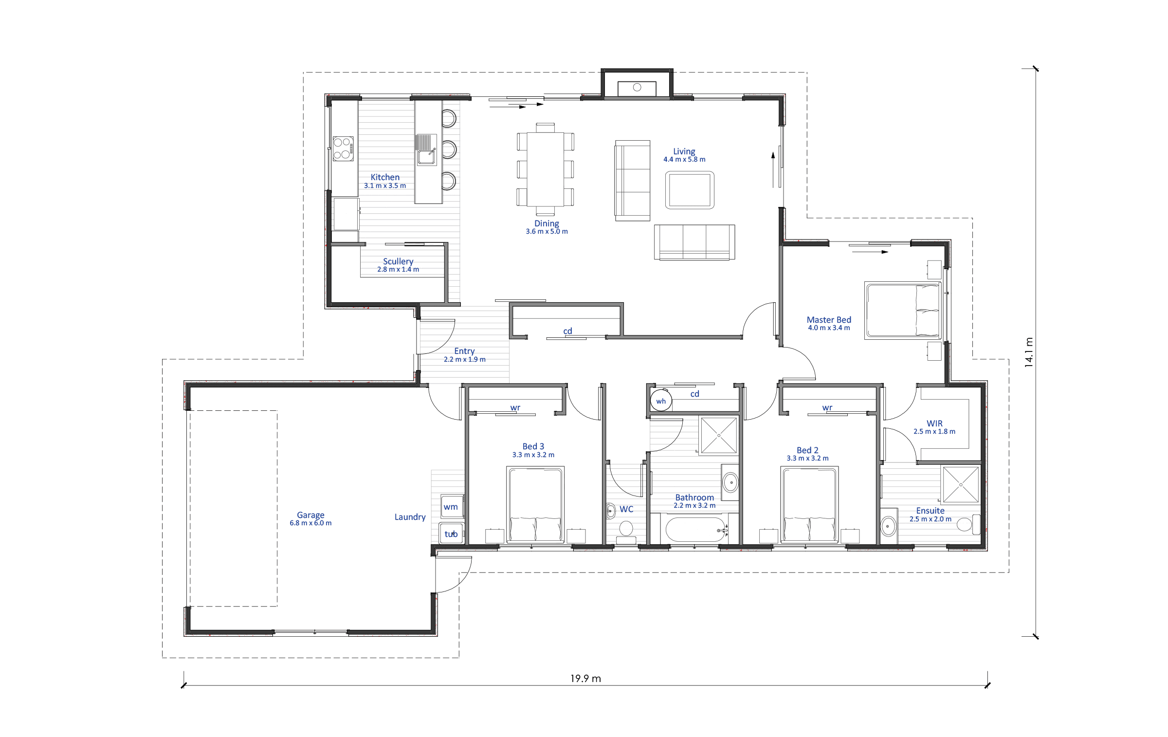
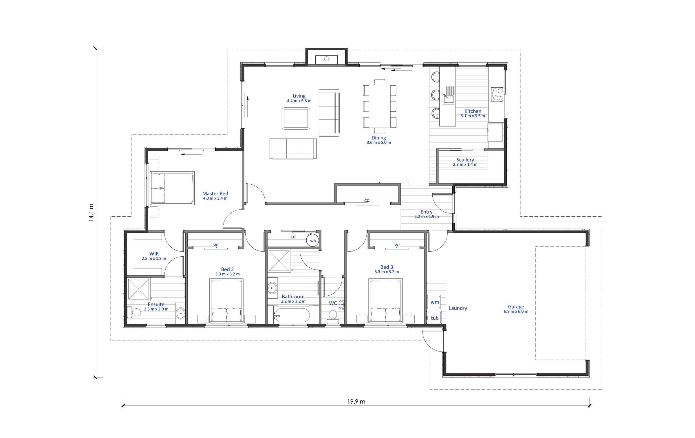
A stunning family sized home with confident street appeal.
The sharp roofline and spacious garage and kitchen give this plan an attractive, uncomplicated approach. The double garage provides you with internal access, plus offers plenty of room for storage.
Step inside the front door and you'll find to your left the long hallway leading to the bedrooms and bathrooms, and to the right, an open plan living and dining area with sliding doors that open to outdoor entertaining spaces.
The generous size and width of the kitchen includes a breakfast bar and a walk-in scullery, providing ample storage.
There are two spacious double bedrooms with built-in wardrobes, separated by a separate toilet and a family bathroom that includes a shower and bath. The master bedroom includes a large walk-in wardrobe and full ensuite, plus sliding doors that open to the outdoor patio area.
Customising this Floor Plan
All our designs are flexible and can be customised to suit your needs and personal preferences, meaning that house you’ve always dreamed of is at your fingertips. Talk to our team today.
Floor Plan
* All prices are inclusive of GST and subject to change. Delivery costs dependent on build type and location.
Click here to download our full Terms and Conditions.




