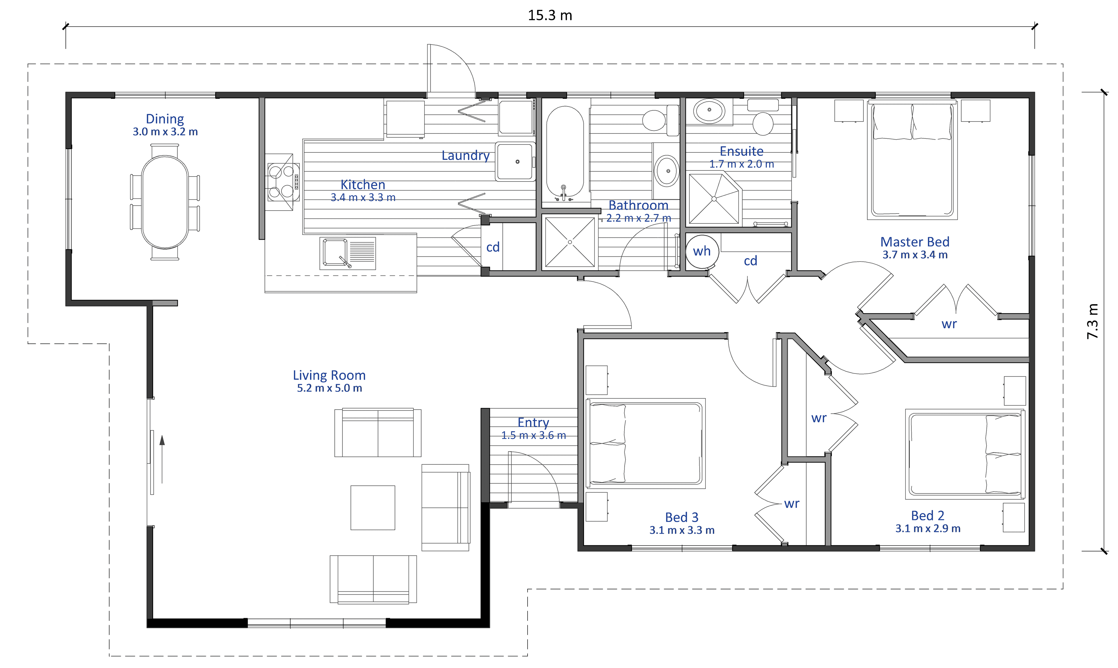
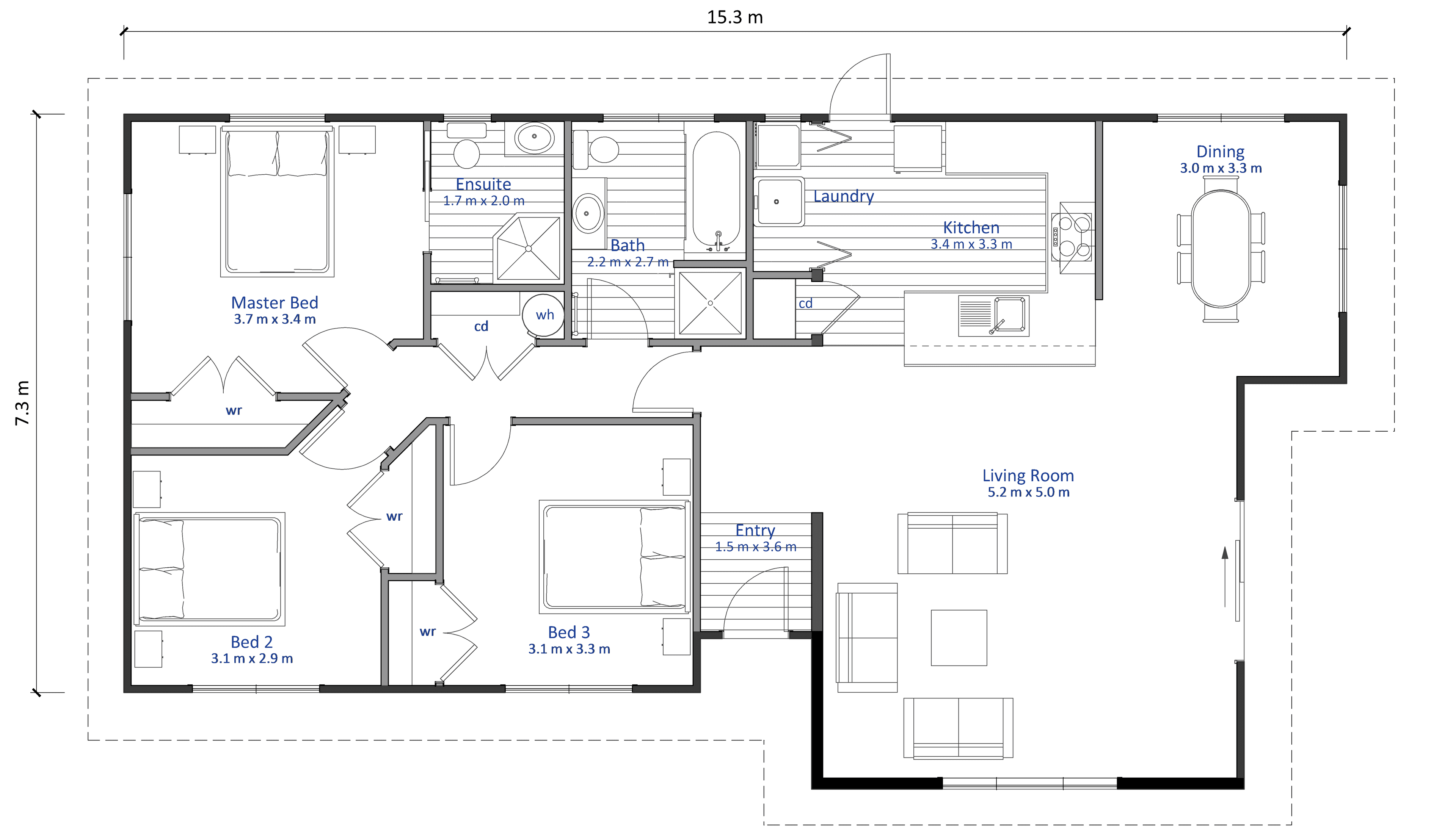
NZ112 Anchorage
About the NZ112 Anchorage
The Anchorage is one of our most popular plans for a smaller home, and once you see the floor plan you’ll see why!
There are 3 spacious bedrooms each with a large wardrobe, the master also features an ensuite. The large family bathroom easily has room for a separate shower and bath.
The laundry is cleverly tucked away behind bi-fold doors in the large kitchen.
We love that the large open plan kitchen, dining and living area is separate to the bedrooms, allowing for privacy while you entertain at the other end of the house.
This simple but cleverly designed small family home is perfect for small sites, farm houses, holiday homes, people wanting to downsize and first home buyers.
Customising this Floor Plan
All our designs are flexible and can be customised to suit your needs and personal preferences, meaning that house you’ve always dreamed of is at your fingertips. Talk to our team today.
Floor Plan
* All prices are inclusive of GST and subject to change. Delivery costs dependent on build type and location.
Click here to download our full Terms and Conditions.





