NZB112 Tāmaki
About the NZB112 Tāmaki
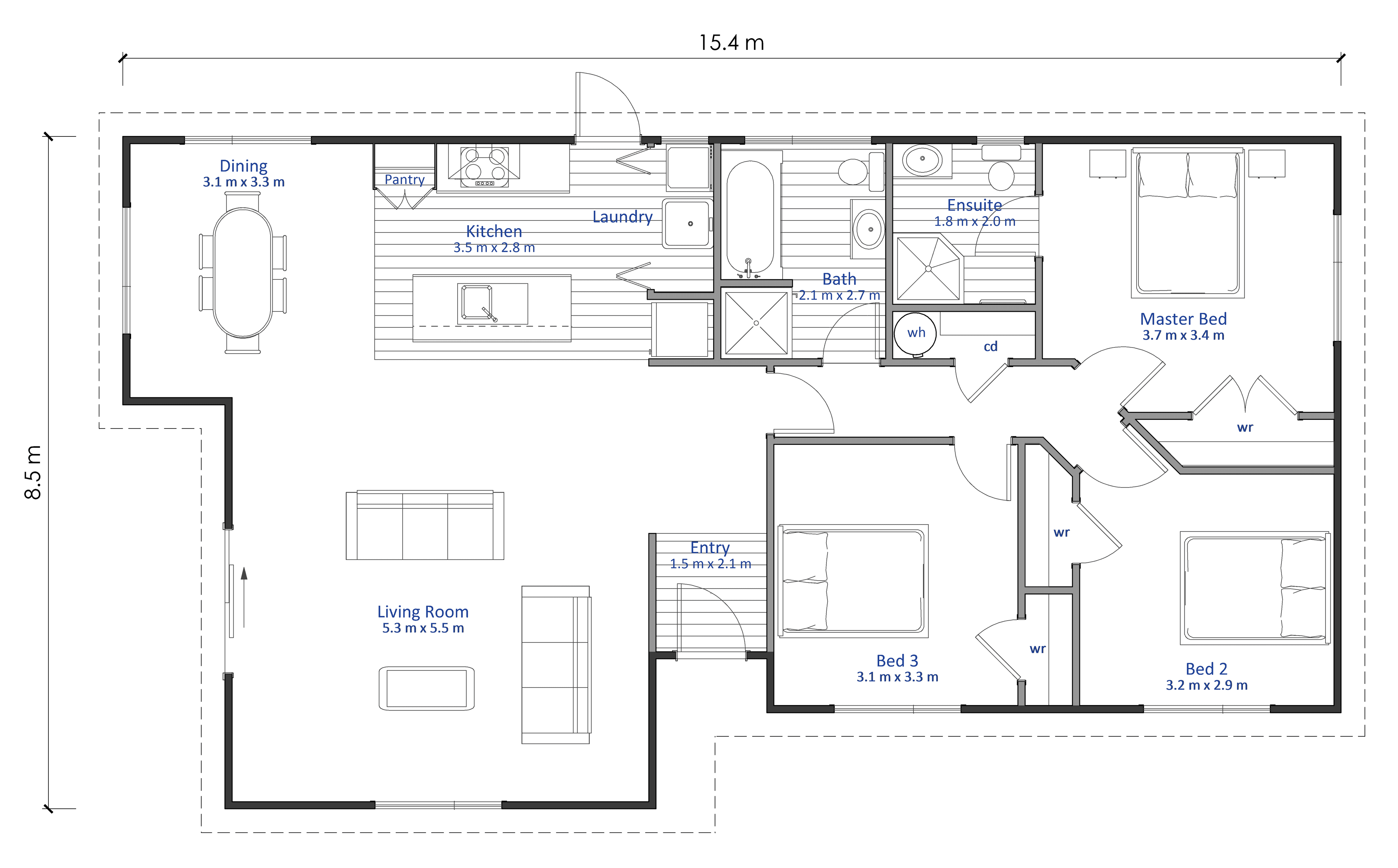
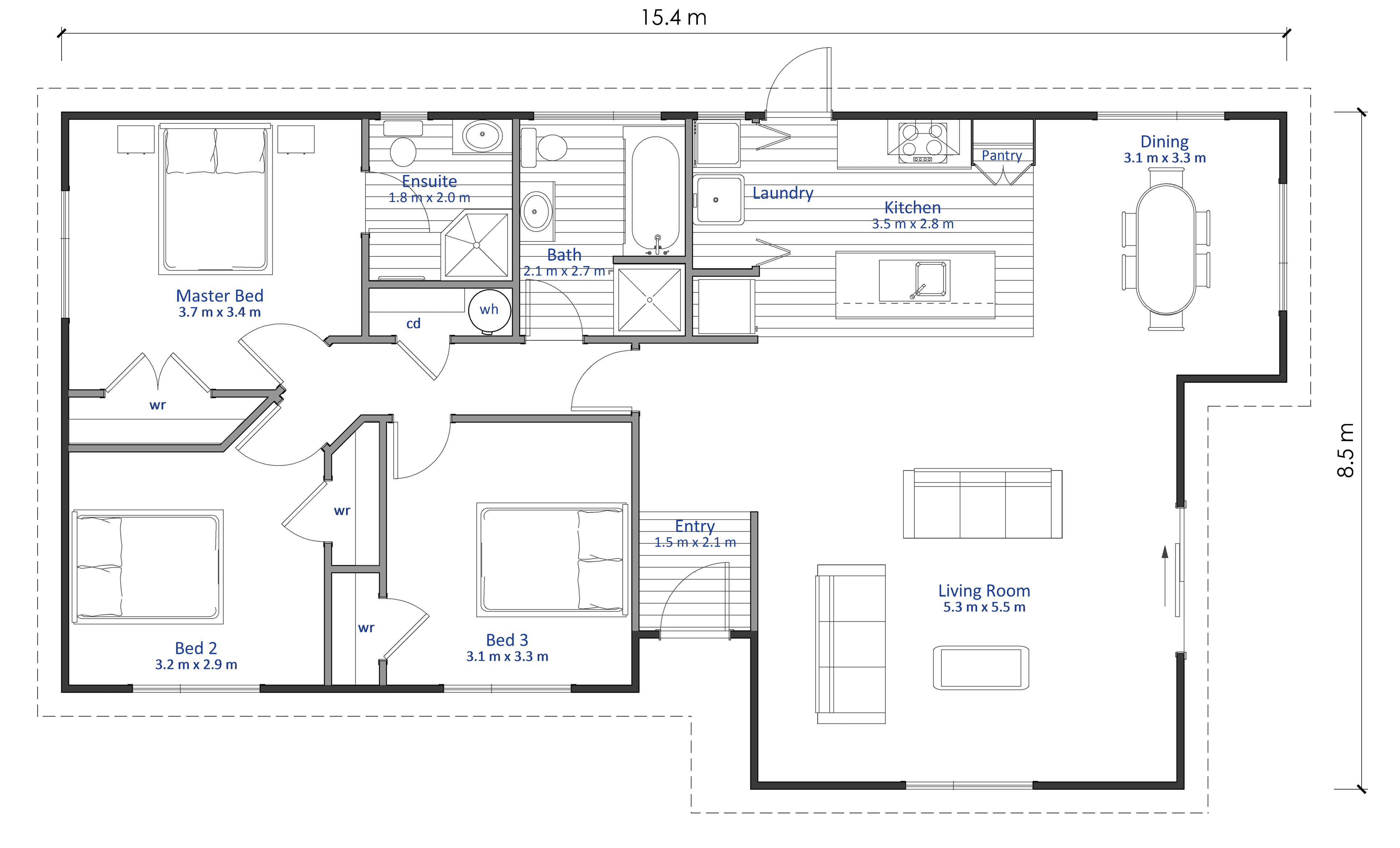
The Tāmaki is a single storey 3 bedroom, 2 bathroom home with a modern mono-pitched roof.
The 3 large bedrooms each have large double wardrobes. The master also has an ensuite. The family bathroom has a separate bath and shower, which brings the total number of bathrooms in this small home to two.
The separate laundry is tucked in a large cupboard near the kitchen and has space for extra storage.
A large entrance way leads into the open plan kitchen, living and dining area, which is light and airy thanks to all the windows in the space.
We love the size of the living room in this design. Lots of room to fit the whole family!
Customising this Floor Plan
All our designs are flexible and can be customised to suit your needs and personal preferences, meaning that house you’ve always dreamed of is at your fingertips. Talk to our team today.
Floor Plan
* All prices are inclusive of GST and subject to change. Delivery costs dependent on build type and location.
Click here to download our full Terms and Conditions.





