NZ224 Karāpiro
About the NZ224 Karāpiro
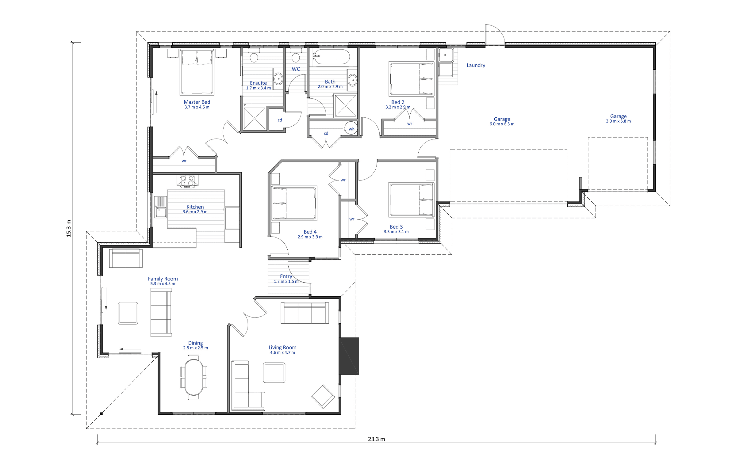
The Karāpiro is designed with the growing family in mind. With four large bedrooms, each with a double wardrobe, you could easily use the fourth room as a large office until the kids want separate rooms.
The two spacious bathrooms (including the ensuite off the master bedroom) easily accommodate a large family, and the separate toilet eliminates squabbles in the morning.
We love the extra large 3 car garage with internal access. There’s plenty of room for storage, workshop or boat!
The living areas are spacious with a separate lounge and the open plan kitchen, dining and family room has the all-important indoor/outdoor flow - just right for entertaining.
Customising this Floor Plan
All our designs are flexible and can be customised to suit your needs and personal preferences, meaning that house you’ve always dreamed of is at your fingertips. Talk to our team today.
Floor Plan
* All prices are inclusive of GST and subject to change. Delivery costs dependent on build type and location.
Click here to download our full Terms and Conditions.





