NZ223 Forest Hill
About the NZ223 Forest Hill
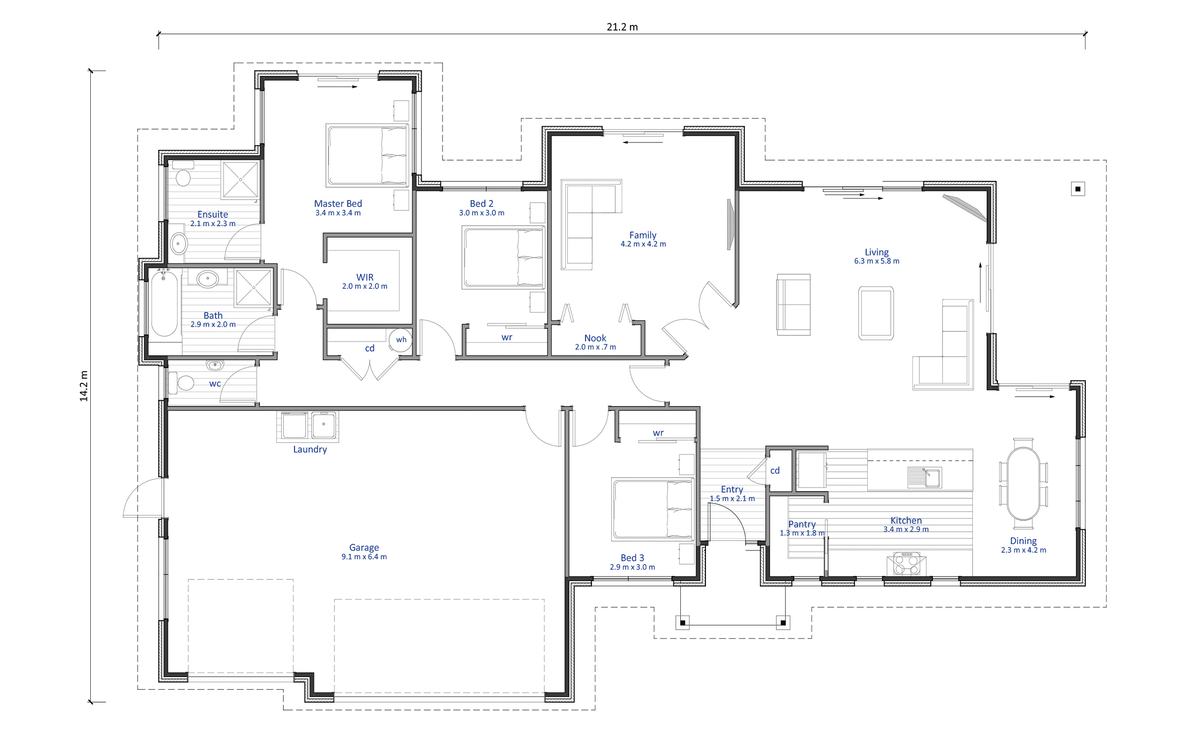
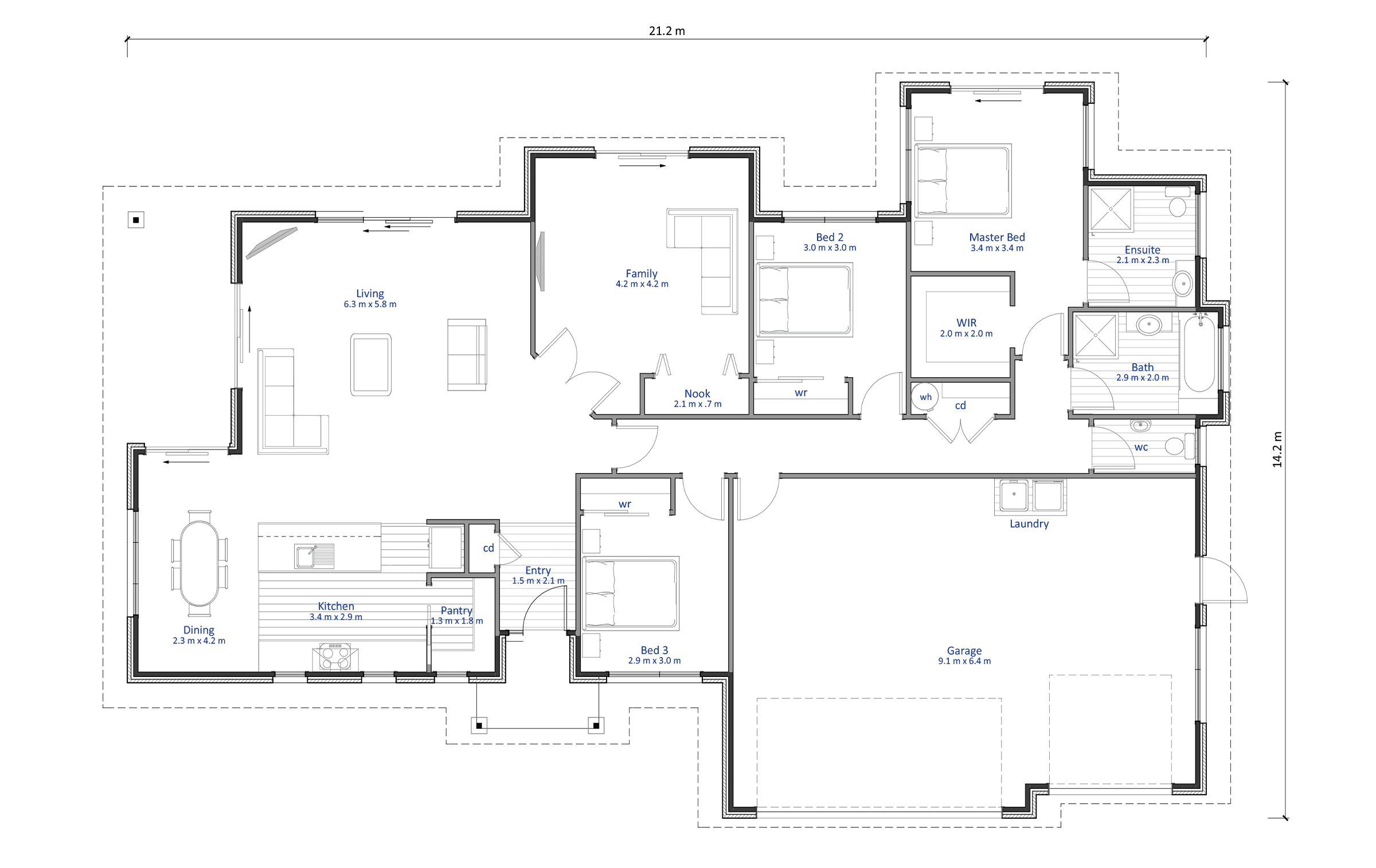
The Forest Hill is a stunning 3 bedroom, 2 bathroom home with ample living areas for the whole family.
The kitchen, dining and living area create a flow out to the deck and an additional separate lounge gives you privacy for those movie nights or to give the kids an area to play while you entertain.
A generous walk-in wardrobe and ensuite complement the master bedroom and the other bedrooms feature large wardrobes and plenty of space.
We love how this plan gives so many options for storage. From the coat cupboard in the entrance way to the office nook tucked away behind bifold doors in the family room.
A massive bonus is the triple car garaging - perfect for boats, bikes, a workshop or studio - the options are endless!
Customising this Floor Plan
All our designs are flexible and can be customised to suit your needs and personal preferences, meaning that house you’ve always dreamed of is at your fingertips. Talk to our team today.
Floor Plan
* All prices are inclusive of GST and subject to change. Delivery costs dependent on build type and location.
Click here to download our full Terms and Conditions.





