NZ225 McKenzie
About the NZ225 McKenzie
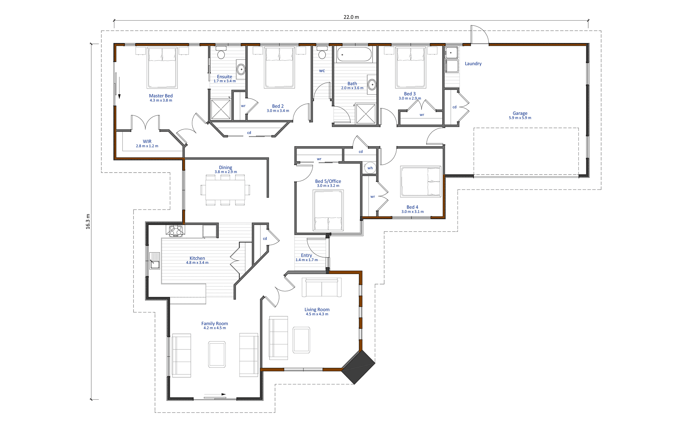
This 5 bedroom house plan has countless options as an extra large family home. Maybe you’d prefer to use one bedroom as a home office? A sewing room, or even a third living area?
The large U-shaped kitchen with breakfast bar is situated between the living area and semi-separate dining room. The large separate family room can be closed off, perfect for when you’re entertaining and the kids want to watch a movie!
You won’t be short of storage in this home with double wardrobes in each room, master with a walk-in robe, an extra large linen cupboard and large double built-in cupboard in the double garage.
The master bedroom has an ensuite and the large family bathroom features a separate shower, bath and toilet - so no arguments in the mornings!
We love how this single storey home has room to move and grow with your family.
Plan available in Kitset home, Full Build, Shell Only and Shell Internal - see our build options here to learn which build option is right for you.
Customising this Floor Plan
All our designs are flexible and can be customised to suit your needs and personal preferences, meaning that house you’ve always dreamed of is at your fingertips. Talk to our team today.
Floor Plan
* All prices are inclusive of GST and subject to change. Delivery costs dependent on build type and location.
Click here to download our full Terms and Conditions.





