NZ251 Wairiti
About the NZ251 Wairiti
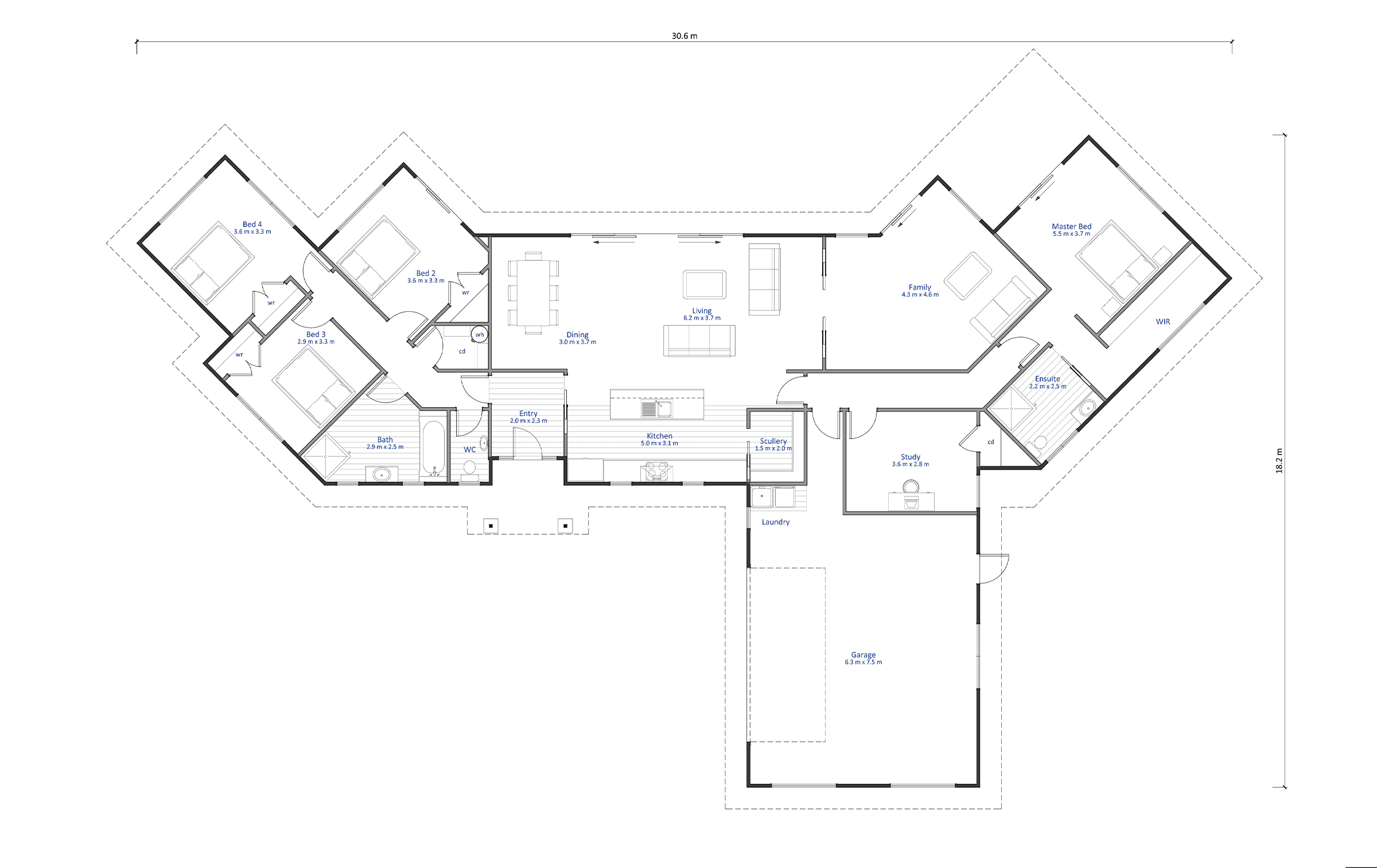
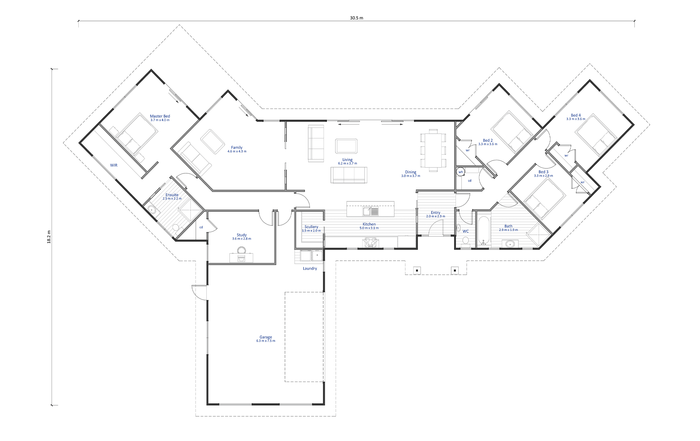
The Wairiti is an exceptional design for a 5 bedroom home or maybe you’d prefer 4 bedrooms and an office, the choice is yours.
Designed in an open U shape to catch the all-day sun, you’ll love the columns that welcome you to the front door.
The stylish and functional kitchen has a large walk-in scullery and breakfast bar. Double cavity sliders can open the separate lounge up to join the open plan kitchen, living and dining area, creating a flow out to the sunny patio area - perfect for entertaining.
The large master bedroom is situated at one end of the house and has a walk-in wardrobe and ensuite. The second bathroom is grouped with the other 3 bedrooms at the opposite end of the home to the master.
The extra large double garage is made for storage - perfect for a growing family!
Customising this Floor Plan
All our designs are flexible and can be customised to suit your needs and personal preferences, meaning that house you’ve always dreamed of is at your fingertips. Talk to our team today.
Floor Plan
* All prices are inclusive of GST and subject to change. Delivery costs dependent on build type and location.
Click here to download our full Terms and Conditions.




