NZ259 Tararua
About the NZ259 Tararua
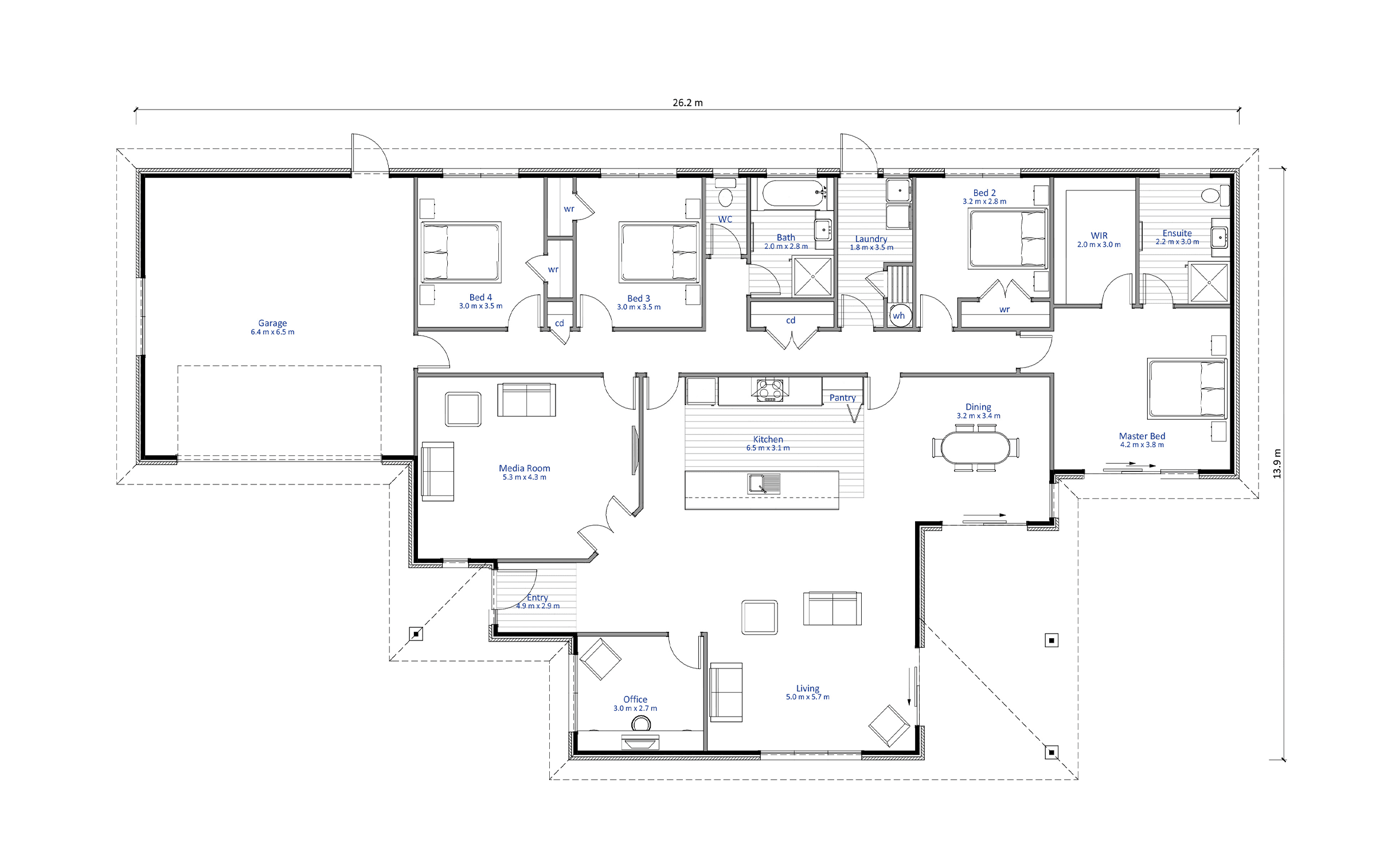
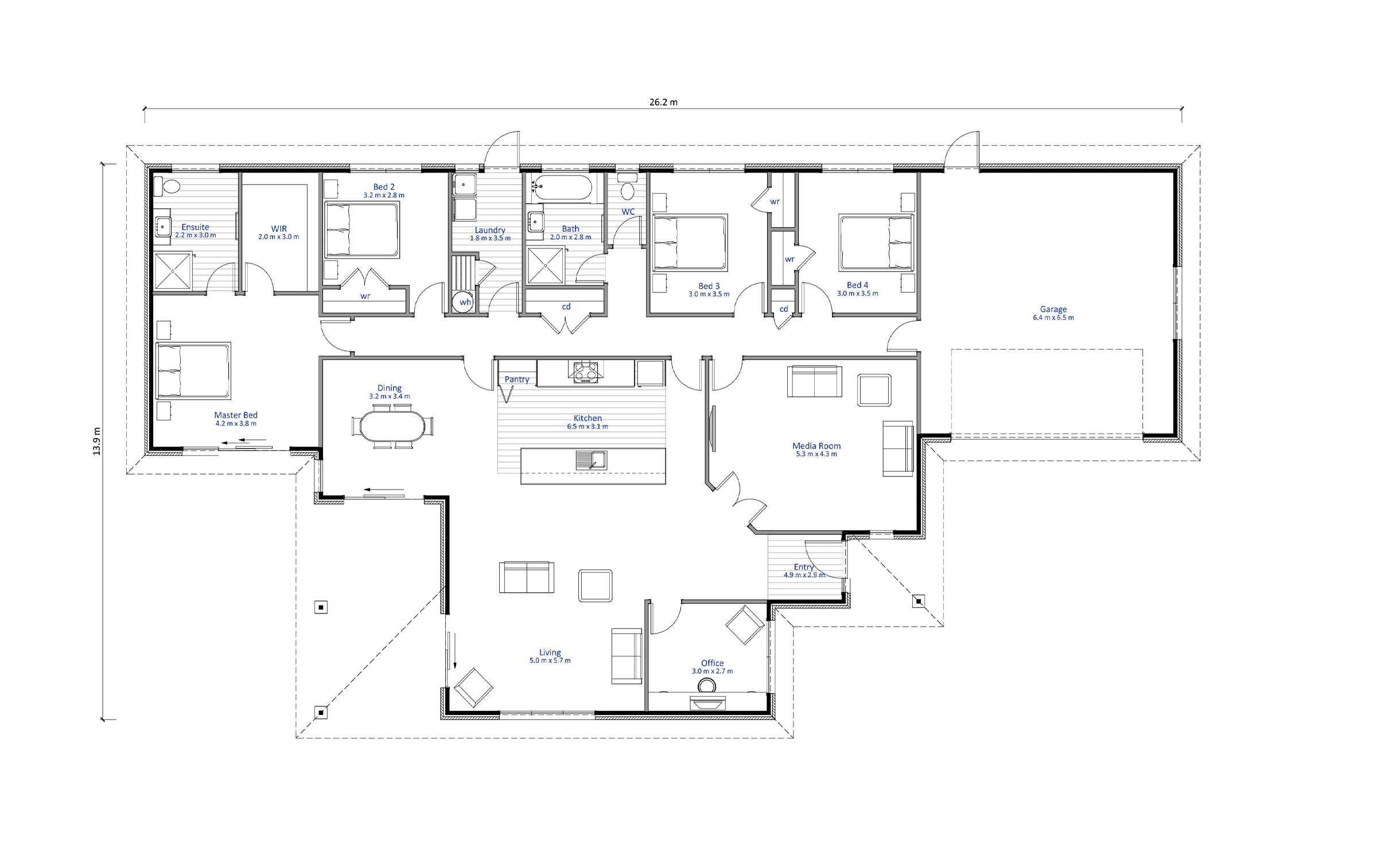
The Tararua is a large single storey home that has everything in it!
The 4 bedrooms run along the back of the house and the master has with a walk-in wardrobe and ensuite. The family bathroom, with separate bath, shower and toilet, and laundry are conveniently placed on this side of the house also.
The open plan kitchen, dining and living room create an easy indoor/outdoor flow. The separate media room can be closed off for privacy when entertaining or opened up to the living space.
There is also a separate office that can be used as a 5th bedroom and the large double garage can easily fit two cars with room to spare!
We love how this home offers such flexible living options for growing families.
Build this plan as specified above or customise to suit your needs. See our build options page, to learn about other build options available to you.
Customising this Floor Plan
All our designs are flexible and can be customised to suit your needs and personal preferences, meaning that house you’ve always dreamed of is at your fingertips. Talk to our team today.
Floor Plan
* All prices are inclusive of GST and subject to change. Delivery costs dependent on build type and location.
Click here to download our full Terms and Conditions.





