NZ278 Rangitoto
About the NZ278 Rangitoto
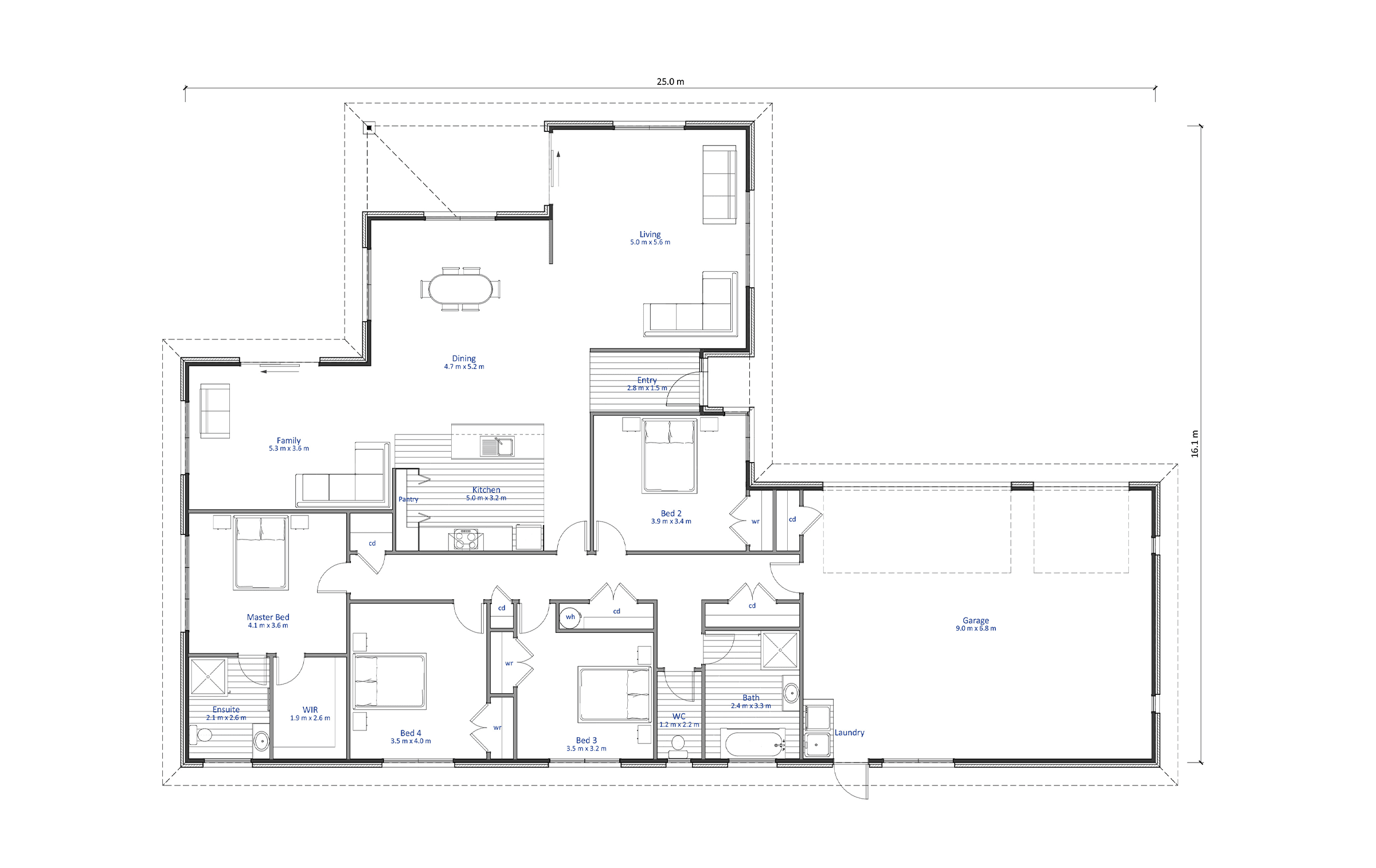
Space is not an issue with this home and includes 3 car garaging - for the boat, extra car or workshop.
The Rangitoto has four large bedrooms with double wardrobes. The master has a walk-in wardrobe and ensuite. There are also three large linen/storage cupboards along the hallway.
The living room, dining area and family room are all centred around the kitchen creating a hub for the home that is invaluable for modern family life.
The kitchen has a large pantry, breakfast bar and plenty of bench space. It looks out across the open plan living areas that have a family room at one end, dining in the middle and large lounge at the other.
We love the covered patio area, ideal for year-round barbecuing!
Customising this Floor Plan
All our designs are flexible and can be customised to suit your needs and personal preferences, meaning that house you’ve always dreamed of is at your fingertips. Talk to our team today.
Floor Plan
* All prices are inclusive of GST and subject to change. Delivery costs dependent on build type and location.
Click here to download our full Terms and Conditions.





