NZ283 Taranaki
About the NZ283 Taranaki
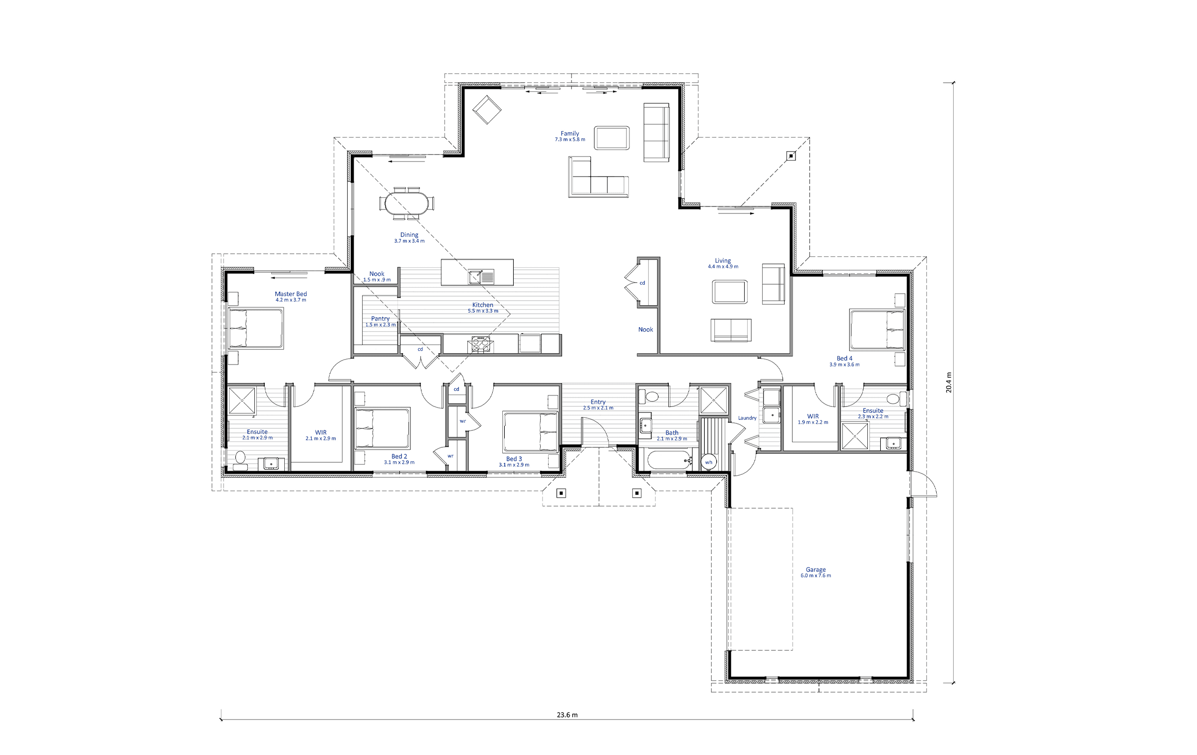
If you’re looking for a large home suitable for inter-generational living, then the Taranaki ticks all the boxes. Two of the four bedrooms have ensuites, and a third family bathroom with separate shower and bath is situated near the living areas for easy access.
The entertainment areas are arranged in an open plan design forming the central hub of the home. They all open out directly onto outdoor areas. With plenty of windows and sliding doors allowing the light to stream in from all angles, this house is spacious and a pleasure to live in.
The extra large double garage has plenty of storage space for a growing family with internal access via the separate laundry.
We love the large kitchen and scullery, it really is the heart of the home!
Build this plan as specified above or customise to suit your needs. See our build options page, to learn about other build options available to you.
Customising this Floor Plan
All our designs are flexible and can be customised to suit your needs and personal preferences, meaning that house you’ve always dreamed of is at your fingertips. Talk to our team today.
Floor Plan
* All prices are inclusive of GST and subject to change. Delivery costs dependent on build type and location.
Click here to download our full Terms and Conditions.




