NZ96 Earnslaw
About the NZ96 Earnslaw
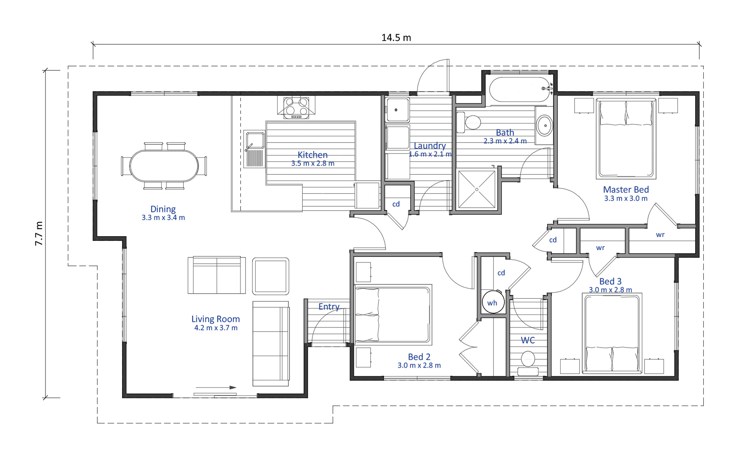
Our very comfortable single storey Earnslaw home has a great layout with bedrooms grouped at one end of the house, the open plan kitchen, dining and living room at the other end opens out onto a patio or deck.
The three large bedrooms have built in wardrobes and are grouped around the family bathroom, which has a separate shower, bath and toilet.
The separate laundry offers additional storage space on top of three hall cupboards.
We love how this plan is so versatile. It’s perfect for small sites, a beach house, farm house, first home buyers or if you’re looking to downsize.
Customising this Floor Plan
All our designs are flexible and can be customised to suit your needs and personal preferences, meaning that house you’ve always dreamed of is at your fingertips. Talk to our team today.
Floor Plan
* All prices are inclusive of GST and subject to change. Delivery costs dependent on build type and location.
Click here to download our full Terms and Conditions.





