NZB105 Waipā
About the NZB105 Waipā
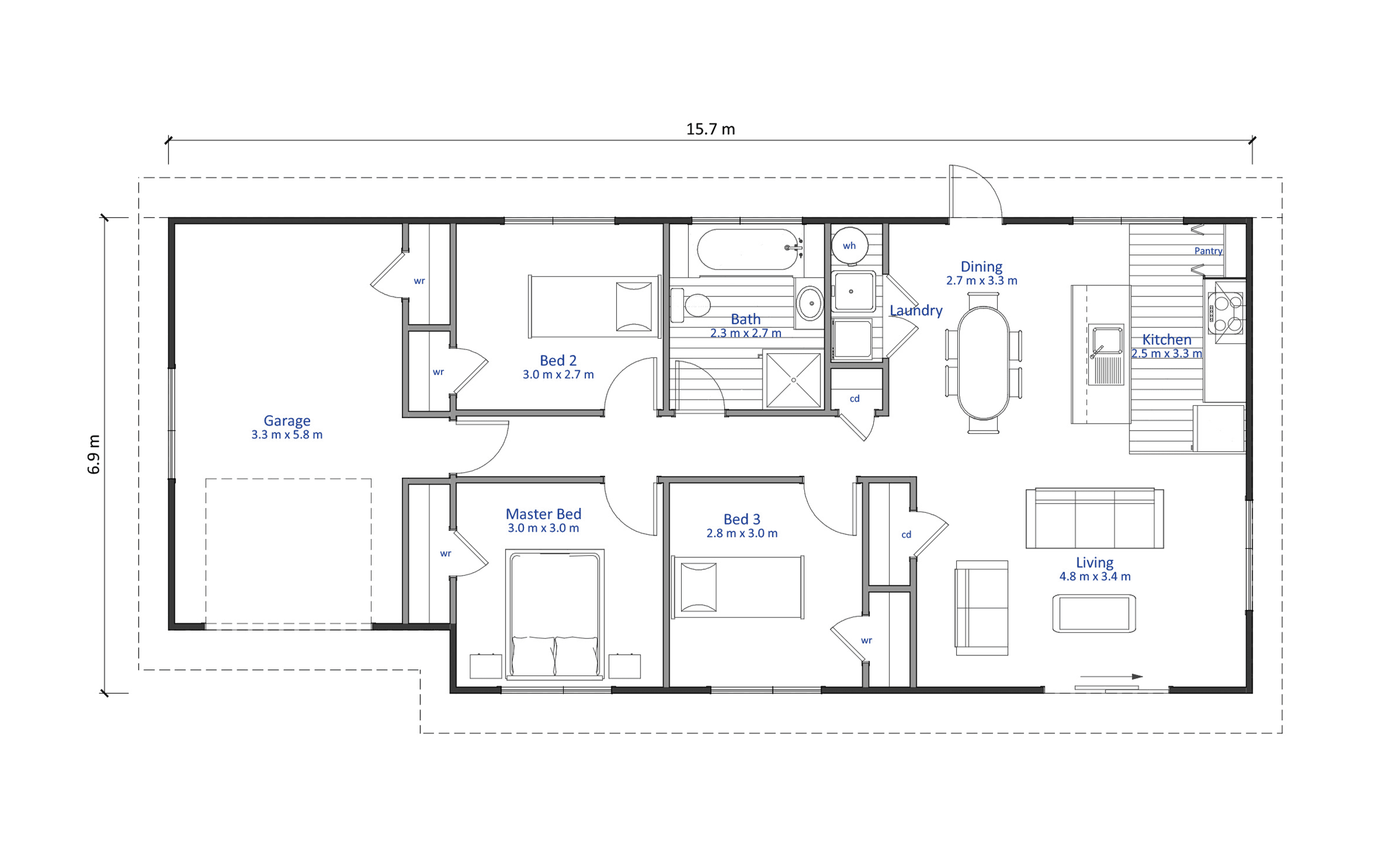
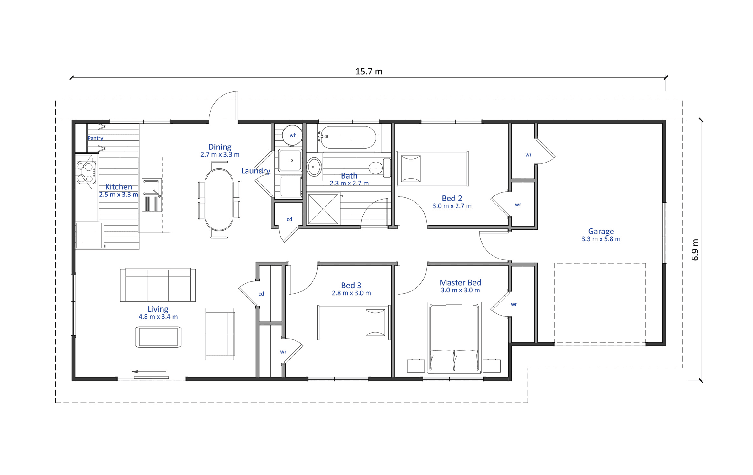
Adding a garage completes this 3 bedroom, 1 bathroom, single storey home - there’s plenty of space for the car and extra storage.
The Waipā is an ideal option for a narrow site. The internal access single car garage with storage is at one end of the property. Next are the 3 large bedrooms and family bathroom, which has a separate shower and bath.
The hall way leads on to the open plan kitchen, dining and living. The separate laundry is cleverly tucked away is a cupboard near the kitchen.
We love how balanced this house is, with space for everyone.
Customising this Floor Plan
All our designs are flexible and can be customised to suit your needs and personal preferences, meaning that house you’ve always dreamed of is at your fingertips. Talk to our team today.
Floor Plan
* All prices are inclusive of GST and subject to change. Delivery costs dependent on build type and location.
Click here to download our full Terms and Conditions.





