NZB153 Tekapo
About the NZB153 Tekapo
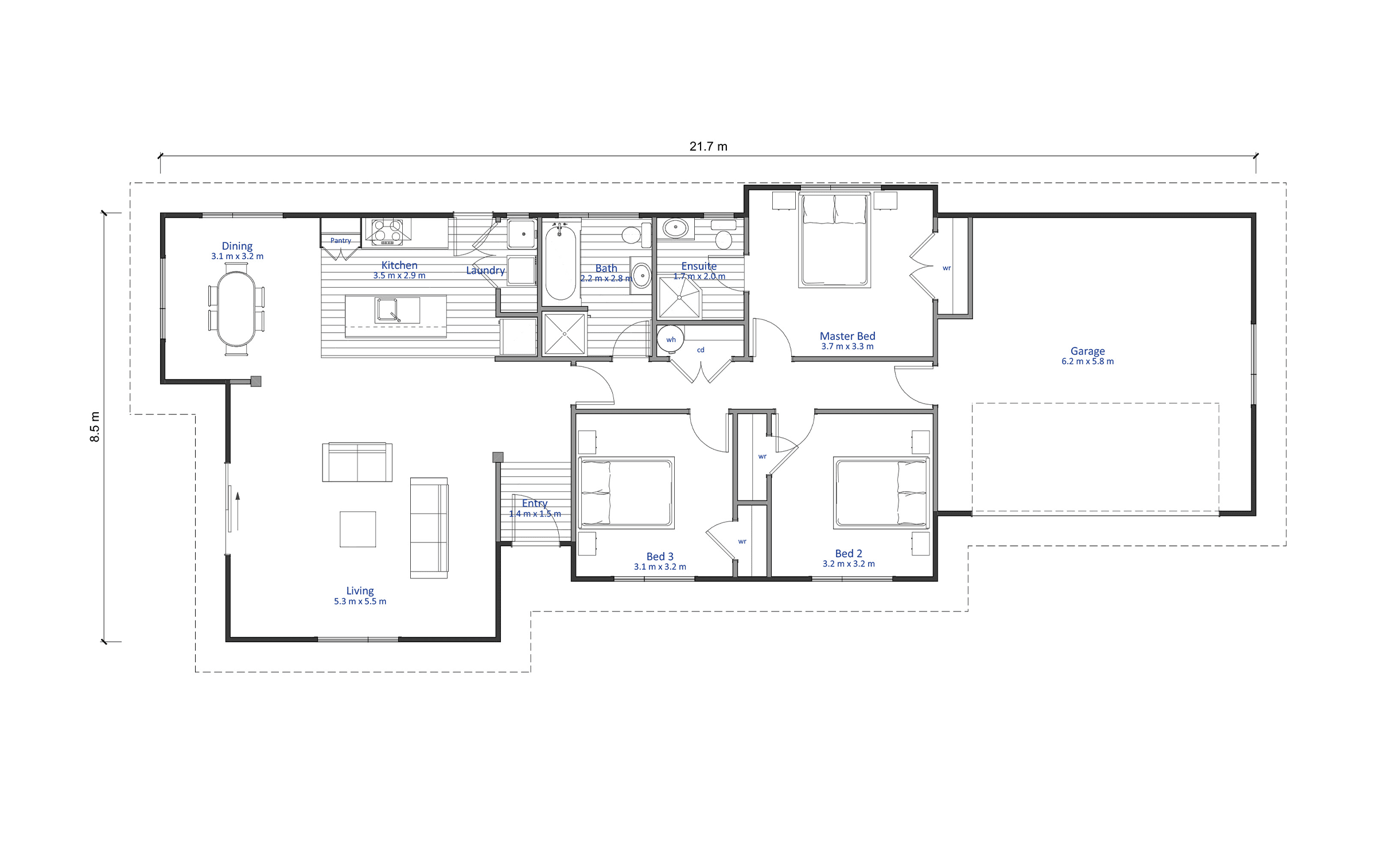
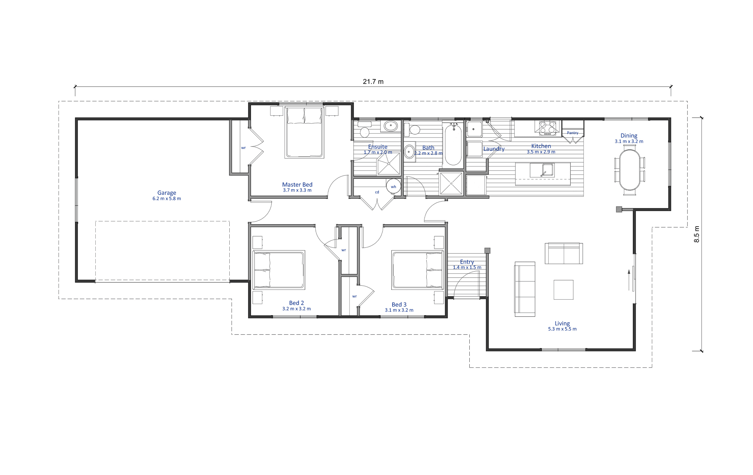
The Tekapo has everything you’d expect from a modern home.
The three large bedrooms and family bathroom are grouped at one end of the house. Each bedroom has a double wardrobe and the master an ensuite bring the total number of bathrooms in this house to two.
A large entranceway opens up to the open plan living area at the other end of the house has the kitchen, dining and living room as well as a separate laundry.
The large double garage has plenty of room for two cars, bikes and extra storage. We love how this house will evolve as your family does.
Customising this Floor Plan
All our designs are flexible and can be customised to suit your needs and personal preferences, meaning that house you’ve always dreamed of is at your fingertips. Talk to our team today.
Floor Plan
* All prices are inclusive of GST and subject to change. Delivery costs dependent on build type and location.
Click here to download our full Terms and Conditions.





