NZ180 Wairakei
About the NZ180 Wairakei
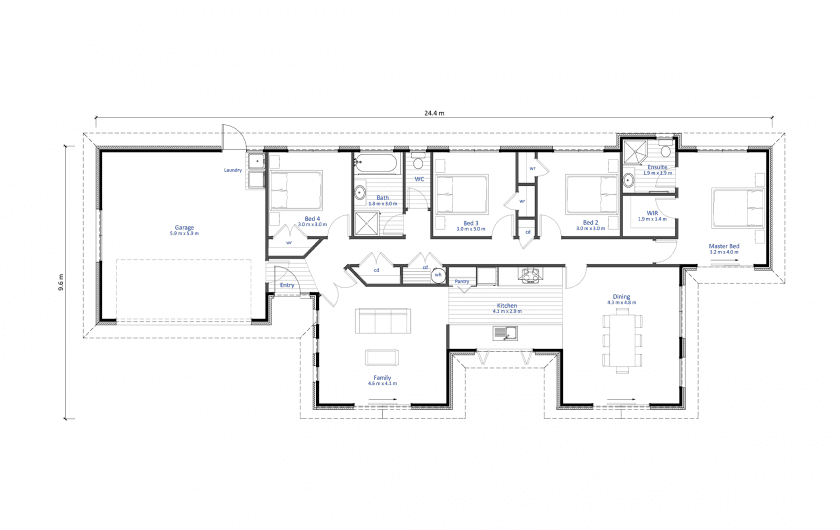
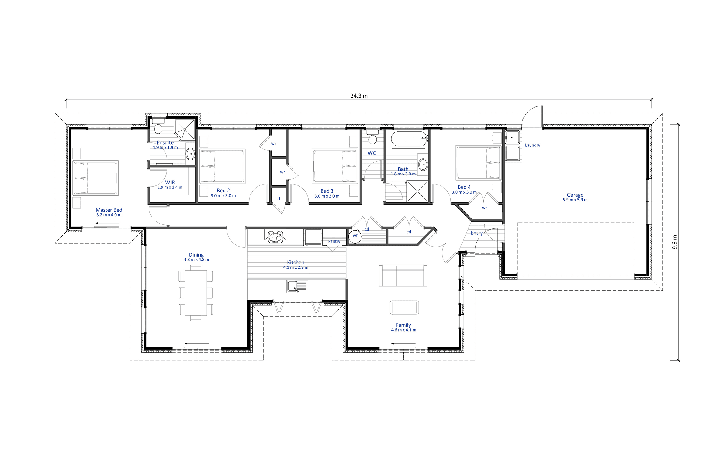
An attractive single storey house featuring two separate living areas and a double car garage.
If you believe the kitchen is the heart of the house then we reckon you’ll love this home. With the sitting and dining room on one side and large family lounge on the other, the galley-style designer kitchen features bi-fold windows opening on to the sheltered courtyard area.
With 4 bedrooms and 2 bathrooms, this is a perfect family home. The master bedroom includes a walk-in wardrobe and ensuite. The family bathroom has a separate bath, shower and toilet.
The large double garage has ample room for two cars, all the family paraphernalia as well as the laundry. It also has internal access to the house off the main entrance way.
Customising this Floor Plan
All our designs are flexible and can be customised to suit your needs and personal preferences, meaning that house you’ve always dreamed of is at your fingertips. Talk to our team today.
Floor Plan
* All prices are inclusive of GST and subject to change. Delivery costs dependent on build type and location.
Click here to download our full Terms and Conditions.





