NZ197 Waitomo
About the NZ197 Waitomo
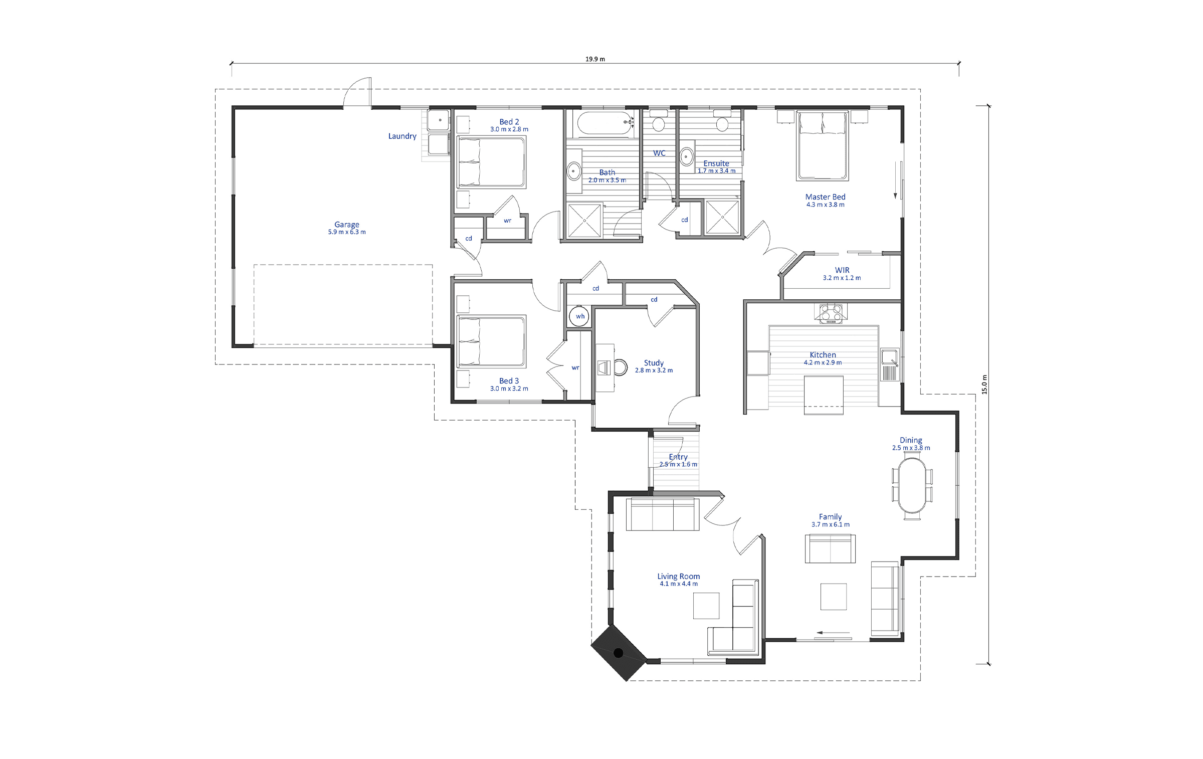
The Waitomo is a spectacular single storey home with great street appeal.
This 3 bedroom, 2 bathroom home features an additional room that can be used as a study or a 4th bedroom. Enjoy a generously sized separate living room that can be closed off for privacy.
The light and airy open plan kitchen, dining and family area flows easily to the patio, perfect for evening barbeques. There is plenty of storage throughout this home, from the walk-in linen cupboard, large wardrobes in each bedroom and double garage.
The family bathroom easily accommodates a large separate shower and bath, and the spacious ensuite off the master bedroom is the perfect size for two.
Customising this Floor Plan
All our designs are flexible and can be customised to suit your needs and personal preferences, meaning that house you’ve always dreamed of is at your fingertips. Talk to our team today.
Floor Plan
* All prices are inclusive of GST and subject to change. Delivery costs dependent on build type and location.
Click here to download our full Terms and Conditions.





