NZ222 Taieri
About the NZ222 Taieri
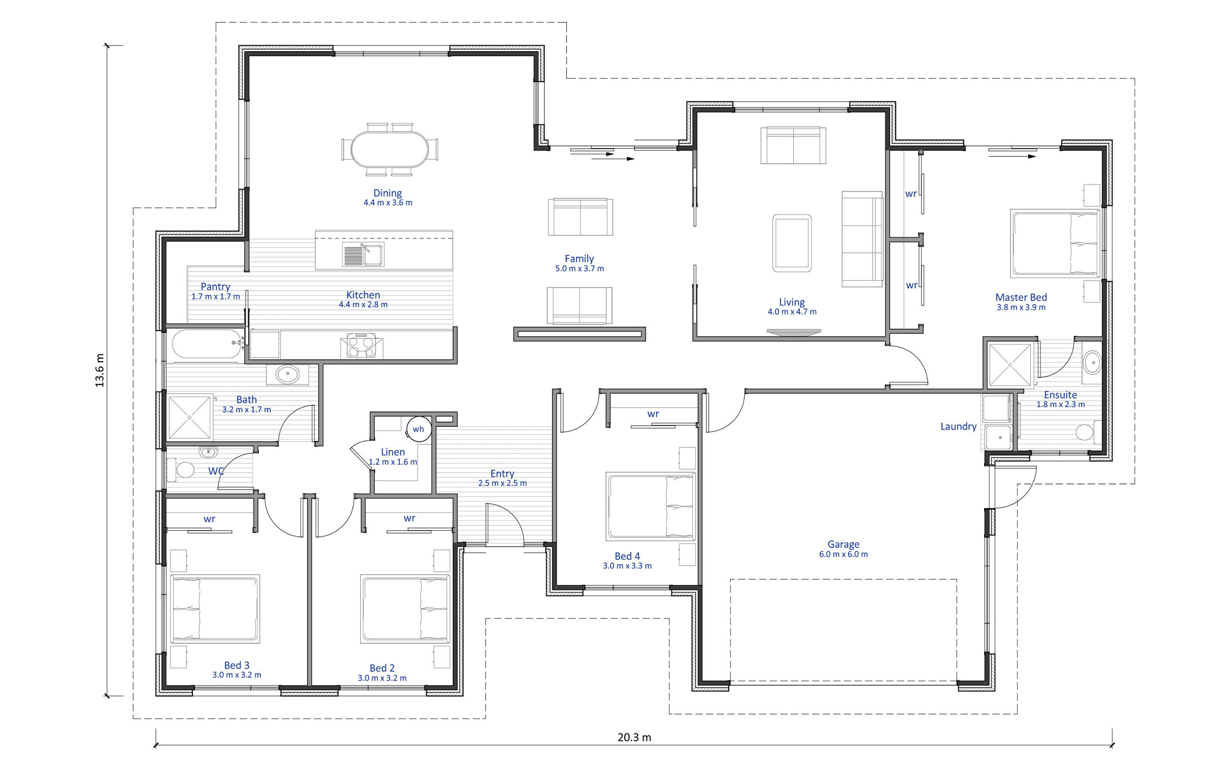
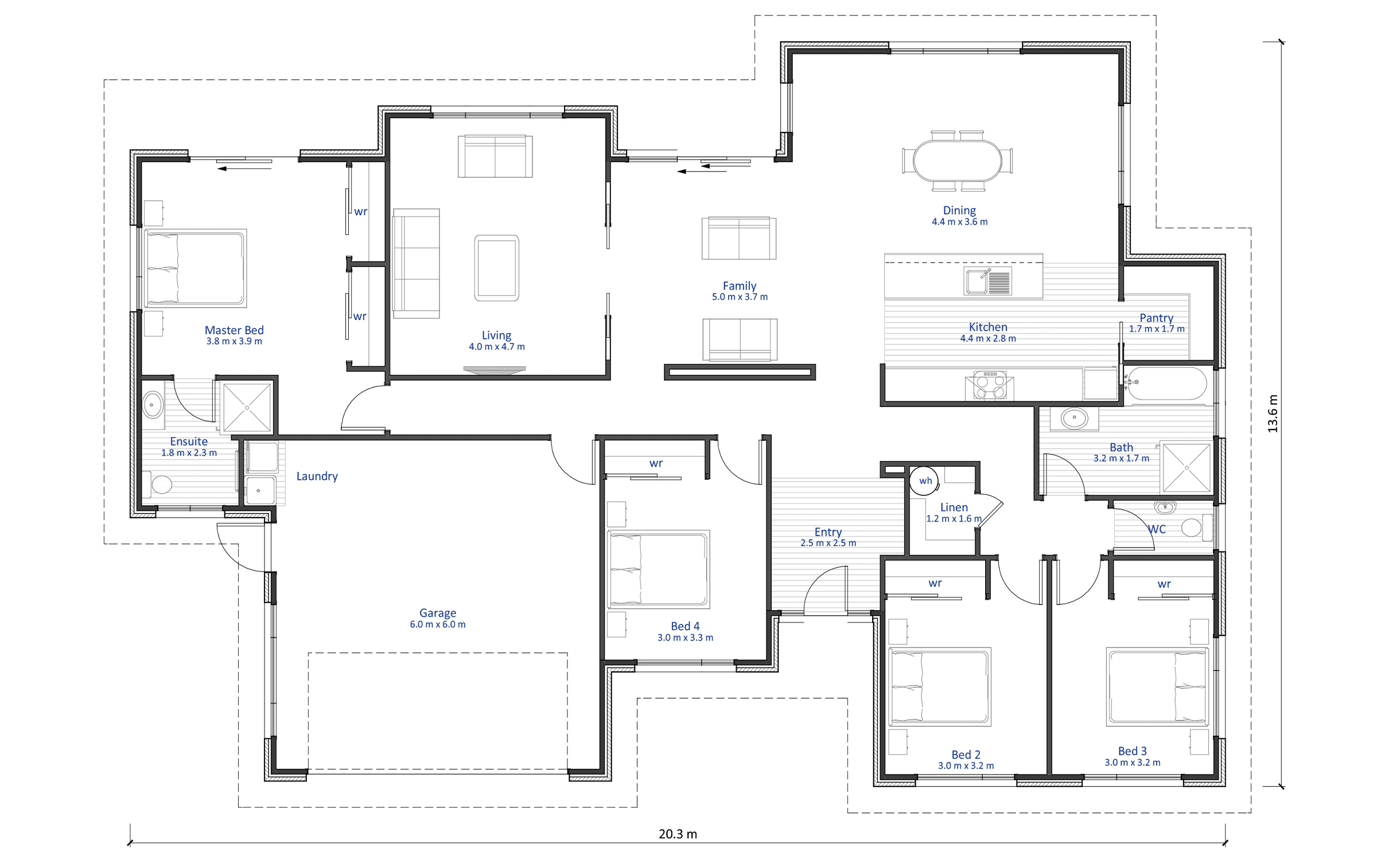
Built for entertaining, this large four bedroom family home features an open plan kitchen, dining and family area that flows out to a patio - perfect for the BBQ! The generously sized separate living or media room will easily fit the whole family and has large double cavity slider doors which you can open up to expand the living space.
You’re spoilt for storage options with this plan. There’s a walk-in linen closet and the large entrance way features a coat and storage nook. Each bedroom boasts a full wardrobe, with the master featuring his-and-her robes.
The double garage offers plenty of room for two vehicles plus additional storage for bikes, sports equipment and any other toys.
With bathrooms at each end of the home we love this practical house plan, making it a great family entertainer.
Customising this Floor Plan
All our designs are flexible and can be customised to suit your needs and personal preferences, meaning that house you’ve always dreamed of is at your fingertips. Talk to our team today.
Floor Plan
* All prices are inclusive of GST and subject to change. Delivery costs dependent on build type and location.
Click here to download our full Terms and Conditions.





