NZ214 Cook
About the NZ214 Cook
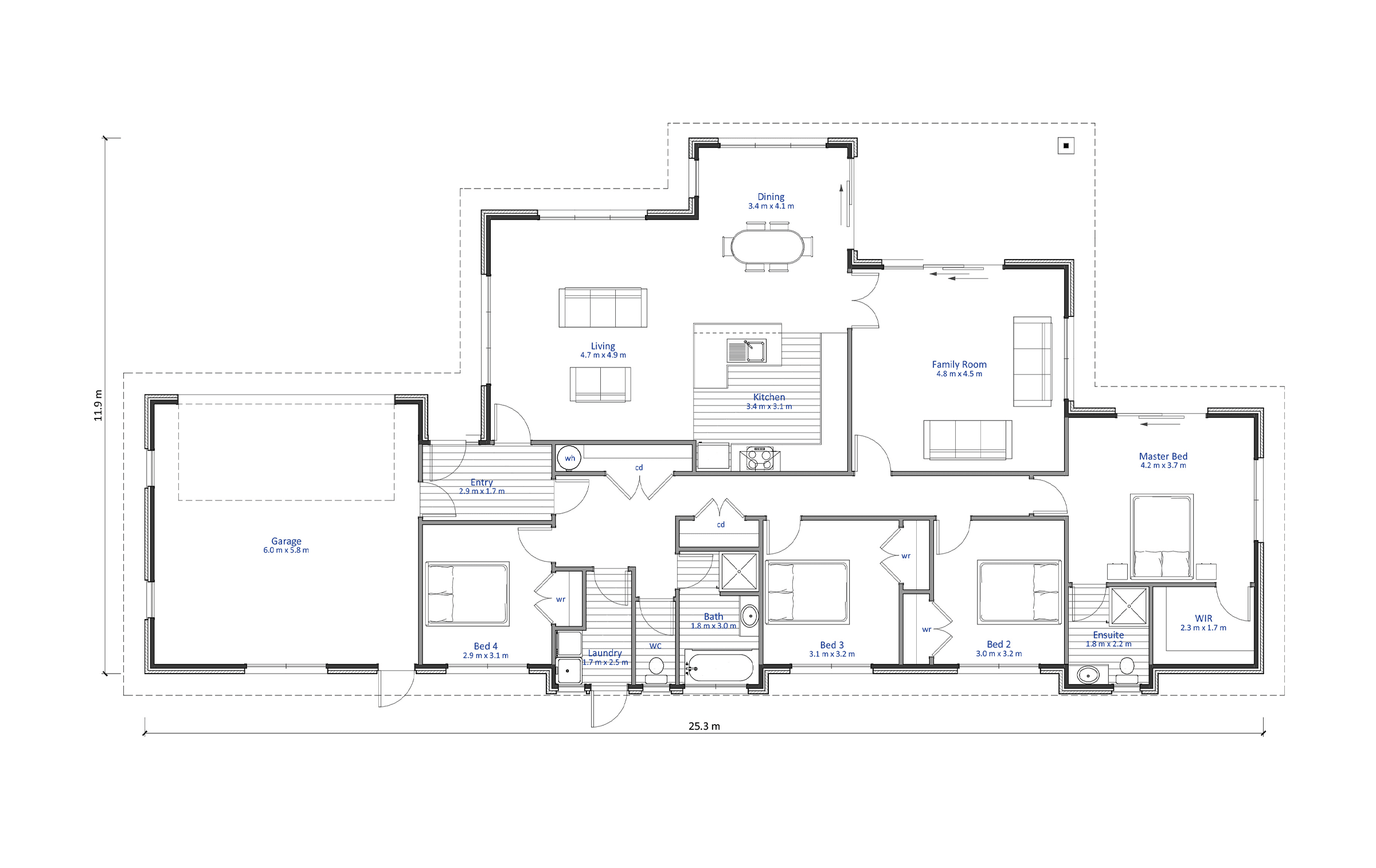
The Cook is a cleverly designed functional and spacious house plan that's perfect to fit on narrower sections or sites. With bedrooms and toilets along one side of the house and the open plan living on the other, the large kitchen with breakfast bar is truly the heart of the home.
The separate lounge can easily be opened up to the rest of the house, or closed for more privacy - perfect for the kids to play in while you’re entertaining!
The large double garage has plenty of room for two vehicles, bikes, and any other toys, and the separate laundry offers even more additional storage.
The large master bedroom has a walk-in wardrobe and ensuite while the family bathroom has space for a separate shower and bath.
Customising this Floor Plan
All our designs are flexible and can be customised to suit your needs and personal preferences, meaning that house you’ve always dreamed of is at your fingertips. Talk to our team today.
Floor Plan
* All prices are inclusive of GST and subject to change. Delivery costs dependent on build type and location.
Click here to download our full Terms and Conditions.





