NZ198 Pukerua
About the NZ198 Pukerua
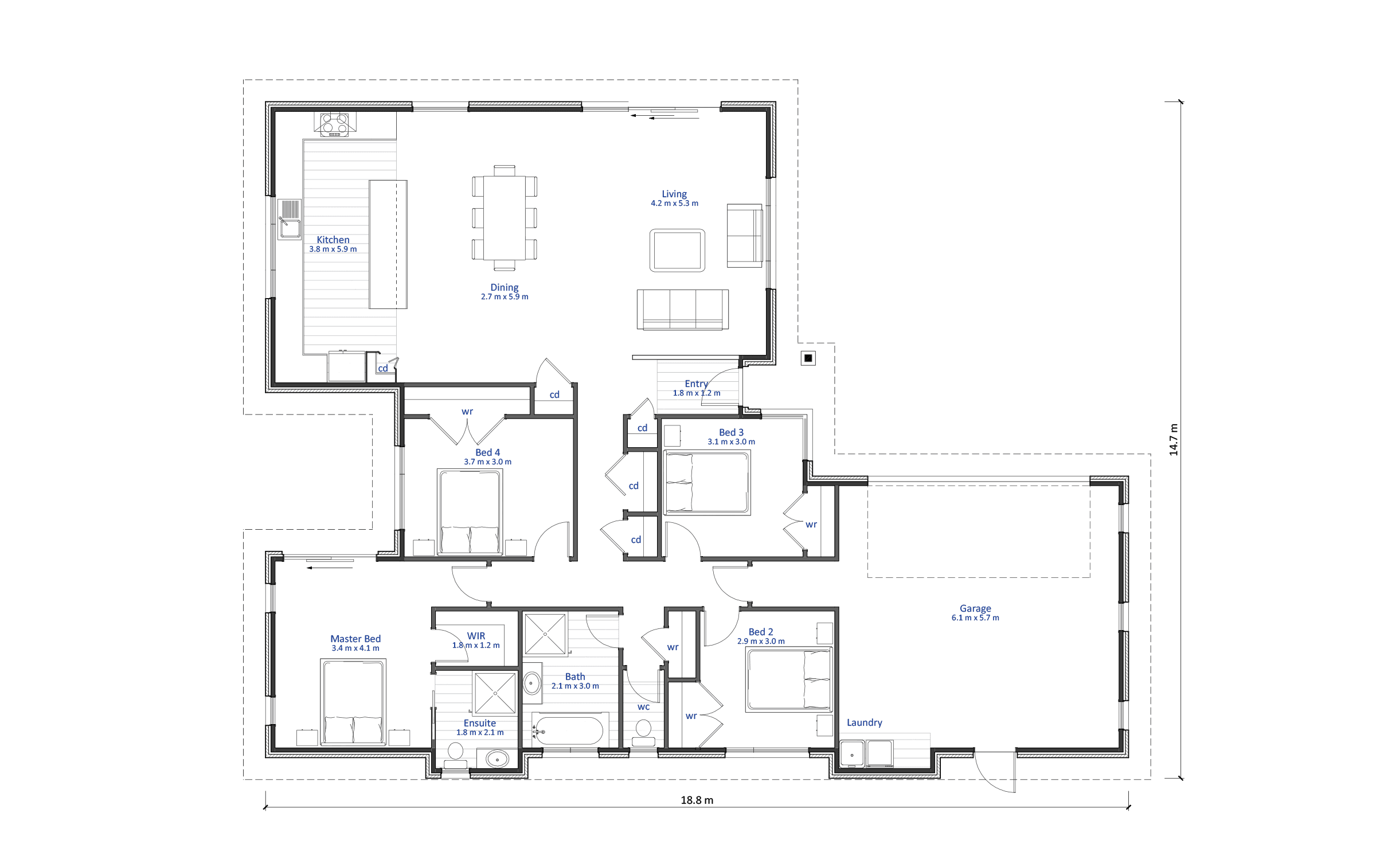
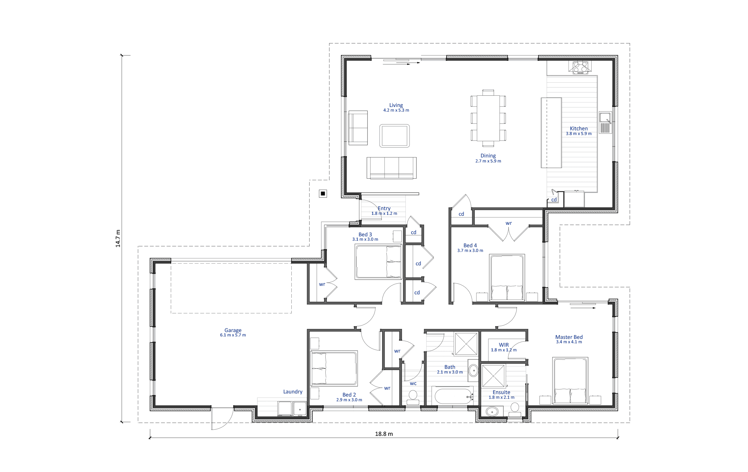
If it's space you are looking for, we’ve cleverly designed the Pukerua 4 bedroom home to give you ample room without the added cost of a larger floor plan. For the busy family, the kitchen will be the hub of the home and with a larger than normal layout, there is room for several cooks without spoiling the broth.
The flow from the kitchen through to the living areas is also purposefully designed to enhance the sense of space in the home and means the chef doesn’t miss out on all the entertaining. This flow is further enhanced by the sliding doors that open out to a large deck, extending your living area.
4 generous bedrooms provide private spaces to retreat to at the end of the day, each with plenty of storage to keep everything tidied away. The master bedroom boasts a full-sized ensuite, walk-in wardrobe and a large private deck.
Perfectly suited for the two-car family with extra toys, the double garage features internal access to the home, room for the laundry appliances and convenient access to the rear of the home.
Customising this Floor Plan
All our designs are flexible and can be customised to suit your needs and personal preferences, meaning that house you’ve always dreamed of is at your fingertips. Talk to our team today.
Floor Plan
* All prices are inclusive of GST and subject to change. Delivery costs dependent on build type and location.
Click here to download our full Terms and Conditions.






