NZB220 Milford
About the NZB220 Milford
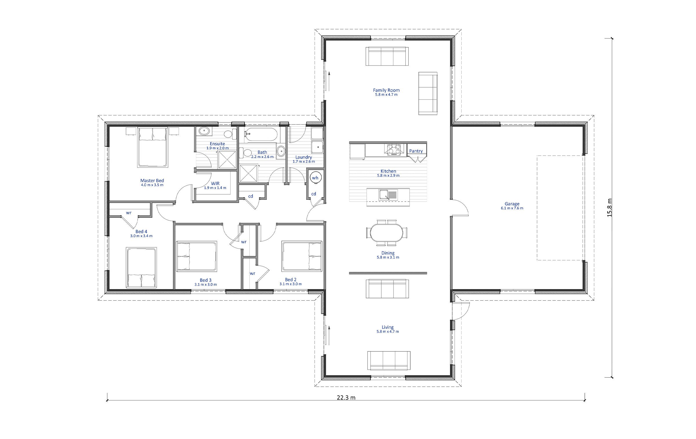
The Milford is a large single storey home with a unique design.
Featuring 2.5 car garage, 2 large separate living areas and 4 double bedrooms (master with ensuite) - there's plenty of room for the whole family and their toys!
Either side of the open plan kitchen and dining area are two separate living areas.
Down the hallway is the separate laundry, family bathroom with a separate bath and shower, and 4 bedrooms. The master has a walk-in wardrobe and ensuite.
We love the layout of this design and if space is what you’re after then look no further!
Customising this Floor Plan
All our designs are flexible and can be customised to suit your needs and personal preferences, meaning that house you’ve always dreamed of is at your fingertips. Talk to our team today.
Floor Plan
* All prices are inclusive of GST and subject to change. Delivery costs dependent on build type and location.
Click here to download our full Terms and Conditions.





